Dokument

Syrgasen 3 219 kvm.pdf

Aminogatan 15

Kontor, 219 m2, Göteborg, Åbro

Hyra: Kontakta annonsören

Kontorslokal ledig i attraktiva Åbro

Välkommen till Aminogatan 15!

Vår fastighet på Aminogatan 15 ligger belägen i Åbro med grannar som Däckia, Derome och Ashell. Här har vi en ledig lokal på plan 1 om 219 kvm tillgänglig för er verksamhet. Lokalen har en egen ingång på markplan och via trappan inomhus når man de allmänna ytorna till lokalen. Utformningen av lokalen är flexibel. 

Varmt välkommen att kontakta oss för frågor och visning. 

Omgivning

Parkeringsmöjligheter/garage:

Flertalet besöksparkeringar, möjligt att hyra egen parkering.

Vägbeskrivning:

Söder om Söderleden, avfart vid Astra Zeneca.

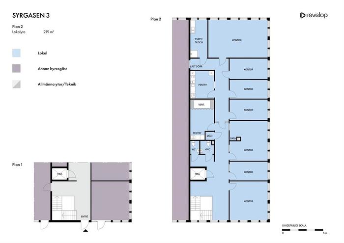
Planlösning

Fastighetsbeteckning:

Syrgasen 3

Planlösning:

Kontorslokal med flertalet kontorsrum. Lokalen kan även delas upp i två verksamheter.

Kommunikationer

Kollektivtrafik buss 25 hållplats AstraZeneca med kort gångavstånd till lokalen. Utöver det stannar busslinjerna 758 och X90 på Kryptongatan strax utanför.

Övrigt

Tillträde:

Omgående

Kontakta Annonsör

Reza Rezaei

Reza Rezaei