Dokument

Ritning

Konsertvägen 11

Kontor, 100 m2, Eskilstuna

Hyra: Kontakta annonsören

Kontorslokal i Brf Företagspark intill Västerleden.
Välkommen till Brf Företagsparken vid Västerleden i Eskilstuna

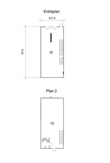
Nu finns det möjlighet att hyra ett kontor om ca 100kvm.
Lokalen disponerar en öppen och ljus yta med parkettgolv där det finns plats för ett flertal arbetsplatser.
Utrustad med pentry och helkaklat badrum.
Entrén till lokalen nås via byggnadens kortsida där det även finns hiss.
Lokalen kommer att göras i ordning med innertak samt att trappen till våningen under kommer skärmas av.

Området är lättillgängligt med direkt anslutning till E20 och har närhet till Eskilstuna Centrum, Tuna Park och Folkesta.
Västerleden är en av de mest expansiva delarna av Eskilstuna. Här finns det ett fantastiskt skyltläge mot Västerleden och E20 där det dagligen passerar ca 21 000 bilar. Exempel på företag i området är Mio, Granngården och K-Rauta, Cirkel K, McDonalds, Max och Burger King.

Tillträde sker enligt överenskommelse.
Kontakta oss gärna för en visning!

Planlösning

Våningsplan:

2

Övrigt

Tillträde:

Enligt överenskommelse

Kontakta Annonsör

Jesper Lind

Jesper Lind