Ryssnäsgatan 14

Kontor/Övrigt, 300 - 1000 m2, Borås

Hyra: Kontakta annonsören

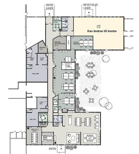
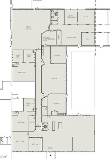
Ljusa kontor med flexibel planlösning - Perfekt logistikläge nära Riksväg 40!

Välkommen till en anpassningsbar kontorslokal i Viared Företagspark, en av Västsveriges mest attraktiva företagsmiljöer. Här får du ljusa kontorsytor med glasväggar som skapar en öppen och trivsam arbetsmiljö, samt smidig access till Borås, Göteborg och Jönköping.

Fördelar med lokalen:

Laddpark för tungtrafik precis bredvid- Framtidssäker lösning för transport och logistik.
Lager-/logistiklokaler i direkt anslutning- Möjlighet att kombinera kontor och lager.
Markplansläge med enkel access- Inga trappor eller hissar som begränsar.
Stora parkerings- och uppställningsytor- Gott om plats för personal och fordon.
Omklädningsrum och personalutrymmen- Praktiskt för verksamheter med fysiskt arbete.
Uteplats med direkt access- Perfekt för lunch i solen och kanske en grill på fredagar!
Ljus och flexibel planlösning- Glasväggar ger ljusinsläpp i hela lokalen.
Möjlighet att omvandla kontor till lagerytor- Anpassa efter din verksamhet.

Läge & tillgänglighet:

📍10 minuter till Borås C, 45 minuter till Göteborg & 50 minuter till Jönköping- Snabb access till motorväg.
🚛Perfekt logistikläge vid Riksväg 40- Smidig transport och distributionsmöjligheter.
🚌Bra kollektivtrafik- Flera busslinjer kopplar samman området med Borås centrum.


Denna lokal är perfekt för företag som vill kombinera kontor, lager och logistik i ett dynamiskt och växande område.

🔹 Vill du se lokalen? Kontakta oss för en visning idag! 🔹

Omgivning

Omgivning/natur:

I närheten ligger Viaredssjön, en naturskön sjö som inbjuder till promenader längs dess stränder. Dessutom finns Rya Åsar naturreservat inom räckhåll, känt för sina lummiga lövskogar, hagar, ängar och utsiktspunkter.

Företag i närheten:

Viared Företagspark är hem för cirka 400 företag, inklusive välkända aktörer som Ellos, NetOnNet, Biltema, Mio, Carspect och Fristads.

Parkeringsmöjligheter/garage:

Ja

Skyltläge:

Ja

Kommunikationer

Viared Företagspark har goda allmänna kommunikationer som underlättar för både anställda och besökare:

Busslinje 20: Förbinder Viared västra med Borås centrum, med flera avgångar under vardagar.
VÄSTTRAFIK

Busslinje 21: Trafikerar sträckan mellan Viared norra och Borås resecentrum under morgon- och eftermiddagstimmar, vilket är särskilt praktiskt för pendlare.

Service

Närservice:

Precis över gatan finns en populär lunchrestaurang som erbjuder vällagad husmanskost. I närområdet hittar du dessutom välkända snabbmatskedjor som Burger King och Max, perfekt för snabba måltider. För dig som söker en lyxigare lunchupplevelse är Bruket i Viared ett populärt val, känt för sina smakfulla och högkvalitativa rätter.

Övrigt

Lokalen kan nås via:

RV40

Kontraktlängd:

Förhandlingsbart

Kontrakttyp:

Förstahandskontrakt

Tillträde:

Omgående

Kontakta Annonsör

Tobias Falk

Tobias Falk