Getängsvägen 6

Butik/Kontor/Lager, 507 m2, Borås

Hyra: Kontakta annonsören

Träningslokal/gym på 507 kvm uthyres i Borås - bastu, omklädning & hiss

Lokalen ligger högst upp i fastigheten på Getängsvägen 6 i Borås och har en totalyta på 507 kvm. Den nås via huvudentré från framsidan samt trapphus och rymlig hiss från baksidan, där även lastbrygga finns. Lokalen är utrustad med ett ventilationssystem anpassat för gymverksamhet och har stora fönster i alla väderstreck vilket ger gott om naturligt ljus.

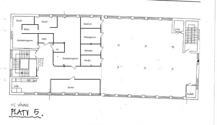
Planlösningen inkluderar två toaletter, två omklädningsrum, dusch, bastu, kök, kontor och förråd - utöver en stor öppen yta som tidigare använts som gym. Parkering finns runt fastigheten.

Lokalen hyrs idag av Atletklubben Borås men det finns möjlighet att hyra hela eller delar av ytan i samarbete med dem. Hyresnivån är förhandlingsbar och lokalen passar för en rad olika typer av tränings- eller rörelseverksamhet, såsom gym, dans, yoga, kampsport eller fysioterapi.

Planlösning

Planlösning:

Två omklädningsrum, två toaletter, kök, kontor och ett stor öppen yta som används som gym.

Övrigt

Kontraktlängd:

Förhandlingsbart

Kontrakttyp:

Förstahandskontrakt

Kontakta Annonsör

Tobias Falk

Tobias Falk