Alingsåsvägen 10

Butik/Industri/Kontor, 150 m2, Borås

Hyra: Öppen för diskussion beroende på anpassningar och hyresperiod.

Lokal på 150 kvm i markplan med skyltläge. Perfekt för butik, restaurang, kontor eller annan verksamhet som behöver exponering

Upptäck denna mångsidiga lokal på 150 kvm i markplan, belägen på Alingsåsvägen 10 - en plats med hög trafik och närhet till Borås centrum samt centralstationen. Det strategiska läget nära riksväg 40 Objektvision ger din verksamhet optimal synlighet och tillgänglighet.

Lokalen erbjuder:


  • Tre separata entréer:Underlättar kundflöde och möjliggör flexibel användning av ytan.


  • Tre toaletter och flera rum:Perfekt för att anpassa efter din verksamhets specifika behov.


  • Access från baksidan via lastbrygga:Gör leveranser och logistik smidiga och effektiva.


  • Parkering på baksidan:Bekvämt för både kunder och personal.


Lokalen har tidigare huserat restauranger och är för närvarande en projektyta, vilket ger dig friheten att skräddarsy den efter dina önskemål. Möjlighet finns att dela upp ytan enligt ritning för att passa mindre företag eller olika verksamheter.

Möjliga användningsområden inkluderar:


  • Butik


  • Restaurang eller café


  • Kontor


  • Studio eller hälsostudio


  • Frisörsalong


  • Solarium


Med det attraktiva läget och den höga exponeringen är detta en unik möjlighet för företag som vill dra nytta av det stora antalet förbipasserande dagligen.

Hyra:Öppen för diskussion beroende på anpassningar och hyresperiod.

Kontakta oss idag för mer information eller för att boka en visning.

Omgivning

Parkeringsmöjligheter/garage:

Parkering finns tillgänglig på baksidan av fastigheten, vilket underlättar för både personal och kunder.

Skyltläge:

Skyltläge mot trafikerad trottoar och väg

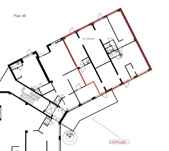
Planlösning

Planlösning:

Projektyta som möjliggör lokaler i olika storlekar mellan 30-150 kvm.

Kommunikationer

Lokalen har ett utmärkt läge med en busshållplats precis utanför fastigheten och endast några minuters gångavstånd till Borås Centralstation. Närheten till Riksväg 40 gör det enkelt att nå med bil, och parkering finns tillgänglig på baksidan av fastigheten, vilket underlättar för både personal och kunder.

Övrigt

Lokalen kan nås via:

Tre entréer på framsidan

Access från baksidan via lastbrygga

Parkering på baksidan av fastigheten

Kontrakttyp:

Förstahandskontrakt

Kontraktbeskr.:

Förhandlingsbart

Tillträde:

När som

Hyresinformation:

Öppen för diskussion beroende på anpassningar och hyresperiod.

Kontakta Annonsör

Tobias Falk

Tobias Falk