Dokument

Ritning_Kontrollanten 9_Unit 31

Verkstadsgatan 4

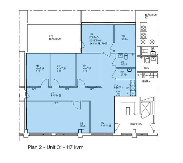
Kontor, 117 m2, Örebro

Nyrenoverad kontorslokal med moderna faciliteter

Nu finns enledig kontorslokal om 117 kvmi en nyrenoverad kontors- och lagerfastighet, belägen i ett strategiskt industriområde nära centrala Örebro. Lokalen erbjuder enpraktisk och kontorsindelad planlösningsom passar perfekt för både enskilda arbetsplatser och samarbete i grupp.

Om lokalen:


  • Kontorsyta:117 kvm med kontorsrum, konferensrum och öppna ytor för flexibla arbetsstationer.

  • Faciliteter:Köks/pentry, förråd och WC.

  • Modern standard:Lokalen är nyrenoverad med fräscha ytor och goda ljusinsläpp.

Om området:


  • Parkering:Asfalterade ytor med gott om parkeringsmöjligheter vid fastigheten.

  • Grönområden:Trevliga grönområden i direkt anslutning för paus och rekreation.

Bista industriområdeligger cirka 3 kilometer sydväst om Örebros centrum och erbjuder ettoptimalt logistiklägemed närhet till E18 och E20. Området präglas av mindre lager- och logistikfastigheter, kontor och butiker, vilket ger en bra mix av verksamheter.


  • Serviceutbud:Enklare service som lunchservering finns i närområdet, och det fullständiga serviceutbudet finns inom kort avstånd i centrala Örebro.

  • Kommunikation:Goda kollektivtrafikförbindelser med buss till centrala Örebro samt cykel- och gångvägar.

Perfekt för företag som söker en nyrenoverad lokal i ett strategiskt läge nära både stad och vägförbindelser. Välkommen att kontakta oss för mer information eller boka en visning!

Omgivning

Företag i närheten:

NetOnNet, Manges padel, Mekonomen, Bilprovningen och AB Karl Hedin Bygghandel

Parkeringsmöjligheter/garage:

Fri parkering

Vägbeskrivning:

Direkt anslutning till E18 och E20

Planlösning

Fastighetsbeteckning:

Kontrollanten 9

Byggår:

1975

Renoveringsår:

1991

Våningsplan:

2 av 2

Planlösning:

Se planritning bland bilder/PDF.

Kommunikationer

Goda kollektivtrafikförbindelser med buss till centrala Örebro

Service

Närservice:

Enklare service med lunchservering finns i närområdet och fullt serviceutbud finns inom räckhåll i centrala Örebro

Övrigt

Kontraktlängd:

Förhandlingsbart

Kontrakttyp:

Förstahandskontrakt

Tillträde:

Omgående

Kontakta Annonsör

Susanne Bermark

Susanne Bermark