Verkstadsgatan 4
Örebro, 220 m2
Lagerlokal med oljeavskiljare, egen markport samt tillhörande kontor Kontors- och lagerfastighet med ledig lagerlokal om 220 kvm på markplan. Lagret...
Dokument
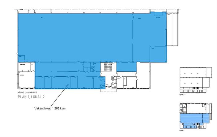
Planlösning.pdfIndustri/Kontor/Lager, 1266 m2, Örebro
Hyra: Kontakta annonsören
Nu finns möjlighet att hyra en välplanerad lagerlokal om totalt1 266 kvm, belägen i attraktiva Bista industriområde - ett av Örebros mest populära logistiklägen. Här kombineras tillgänglighet, funktion och smidiga kommunikationer på bästa sätt.
Lager och hantering
Lokalen erbjuder ett rymligt lager med en takhöjd om 7 meter, idagsläget finns ett nedpedlat akustiktak som kan tas bort vid behov. Ytan är utrustad med LED-belysning för energieffektiv drift och har tillgång till en egen lastkaj för smidig in- och utlastning.
Kontor och personalytor
I anslutning till lagret finns mindre kontorsytor samt praktiska personalutrymmen såsom kök, omklädningsrum och WC.
Fastigheten erbjuder kostnadsfria parkeringsplatser med plats för cirka 50 bilar.
Läge - Bista Industriområde
Bista industriområde ligger ca tre kilometer sydväst om Örebros centrum och erbjuder ett optimalt logistikläge nära både E18 och E20. Här finns goda kollektivtrafikförbindelser med buss samt cykel- och gångvägar.
Området erbjuder en blandning av lager- och logistikfastigheter, kontor och butiker.
Pilängen Industriområde 3 km från centrala Örebro. Naturskönt närområde intill Svartån och Åbyparken.
Parkeringsmöjligheter/garage:50 parkeringsplatser
Kontrollanten 9
Byggår:1975
Renoveringsår:1991
Våningsplan:1 av 2
Kollektivtrafikförbindelser med buss till Vaktelvägen avgår var 10:e minut från Örebro C och tar crika 20 minuter inklusive promenad sista biten.
Lunchrestauranger och dagligvarubutiker finns i närområdet.
I direkt anslutning till E18 och E20 samt goda kollektivtrafikförbindelser.
Tillträde:Enligt överenskommelse