Dokument

Planritning_Lådan 1_Plan 1.pdf
Planlösning_Lådan 1_ Plan 2.pdf

Stora Räppevägen 60

Industri/Kontor/Lager, 1123 - 14531 m2, Växjö

Hyra: Kontakta annonsören

Flexibla lagerytor med högspänning, lasthus och markportar

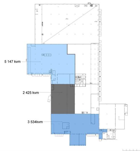
I denna moderna logistikfastighet finns flera lagerenheter tillgängliga för uthyrning, från2 425 kvm upp till 5 147 kvm. Lokalerna kan hyras separat eller kombineras för att skapa en lösning som passar din verksamhet. Fastigheten är renoverad 2012 och håller hög standard, med god anpassningsmöjlighet.

Lagerlokalernas egenskaper:


  • Lager med öppen planlösning och takhöjd mellan 4,5-8 meter


  • Totalt18 lasthusoch7 markportar


  • Sprinklersystemi lagerytorna


  • Högspänningsanslutningoch god elkapacitet


  • Inhägnat områdemed uppställningsytor, rangerytor och parkeringsplatser


  • Inflyttningsklara lokaler


  • Mindre kontorsytor i direkt anslutning till lagret, inklusive WC och pentry


Separat kontorslokal - kan kombineras vid behov

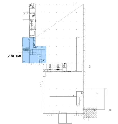
Utöver de mindre kontorsytorna i lagret finns även en rymlig kontorslokal på plan två, om totalt3 425 kvm. Lokalen kan delas från ca1 123 kvmoch erbjuder:


  • Öppen kontorsmiljö med flexibla rumslösningar


  • Matsal, pentry, omklädningsrum, dusch, bastu och WC


  • Möjlighet att hyra tillsammans med lagerlokal eller som en fristående kontorslösning


Tillgängliga lagerenheter:


  • 2 425 kvm- 1 lasthus


  • 3 534 kvm- 10 lasthus, 6 markportar


  • 5 147 kvm- 7 lasthus, 1 markport


Läge

Räppe är ett attraktivt industriområde väster om centrala Växjö, strax söder om Växjö Airport. Området ligger strategiskt vid knutpunkten mellan riksväg 23, 25, 27 och 30, vilket gör det optimalt för logistikverksamheter. Stort serviceutbud finns inom räckhåll vid infarten till centrum. Det finns goda kollektivtrafikförbindelser med buss till centrala Växjö. Fastigheten ligger precis intill det område där Växjös nya akutsjukhus planeras. En del i denna planering är också den nya tågplattform som kommer att byggas i anslutning till området vilket ytterligare kommer att förbättra fastighetens läge.

Omgivning

Företag i närheten:

Alwex Lager & Logistik AB, LG Pettersson Åkeri AB, GDL, Skanska och Nordicfeel

Parkeringsmöjligheter/garage:

Fri parkering

Skyltläge:

Bra exponering av skyltläge

Vägbeskrivning:

Intill knutpunkten mellan riksväg 23, 25, 27 och 30

Planlösning

Fastighetsbeteckning:

Lådan 1

Byggår:

1979

Renoveringsår:

2012

Våningsplan:

1 av 2

Planlösning:

Se bilder/PDF.

Kommunikationer

Goda kollektivtrafikförbindelser med buss till centrala Växjö

Service

Närservice:

Stort serviceutbud finns inom räckhåll vid infarten till centrum

Övrigt

Takhöjd:

8 m

Lokalen kan nås via:

Totalt 18 lasthus och 7 markportar på hela lagerytan

Hiss:

Ja

Kontraktlängd:

Förhandlingsbart

Kontrakttyp:

Förstahandskontrakt

Tillträde:

Omgående

Kontakta Annonsör

Magnus Uvnäs

Magnus Uvnäs