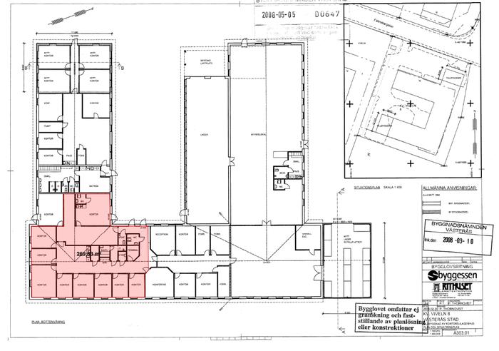
Fältmätargatan 16

Industri/Kontor/Övrigt, 269 m2, Västerås, Brandthovda

En trevlig lokal med smarta planeringar som inrymmer allt från konferensrum till bastu. Ett tillfälle att hyra en kontorslokal i Hälla Västerås.

Kontakta Annonsör

Daniel Lundevall

Daniel Lundevall