Dokument

Plan 2 uppmätt.pdf
Plan 1 uppmätt.pdf

Silkesvägen 5

Industri/Kontor/Lager, 410 m2, Värnamo

Hyra: Kontakta annonsören

Central belägen lokal för kontor/industri på bästa läget i Värnamo

Upptäck denna centralt belägna lokal om 410 kvm i två plan, perfekt för kontor, produktionslokaler och lager, i det expansiva Värnamo. Fastigheten erbjuder generösa parkeringsmöjligheter precis intill, vilket gör det bekvämt för både personal och besökare.

Med sitt strategiska läge i hjärtat av Värnamo får du alla fördelar av närheten till dagligvaruhandel och restauranger. Dessutom har fastigheten ett utmärkt logistiskt läge med snabb access till riksväg 27, 151 och E4, vilket underlättar transport och pendling.

Ta tillfället i akt att etablera din verksamhet i denna centrala miljö. Kontakta oss idag för mer information och boka en visning!

Omgivning

Företag i närheten:

Här hittar du bland annat Herber Engineering i samma fastighet, mitt över gatan har du Jehréns Färghandel,

Parkeringsmöjligheter/garage:

Gott om parkeringsmöjligheter i anslutning till fastigheten.

Skyltläge:

Mycket bra skyltläge längs med Silkesvägen

Vägbeskrivning:

Fastigheten ligger i anslutning till större trafikleder riksväg 27, 151 och E4:an.

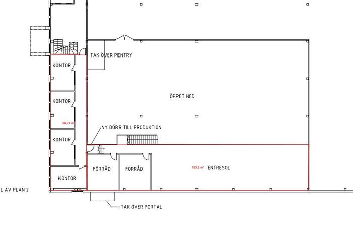
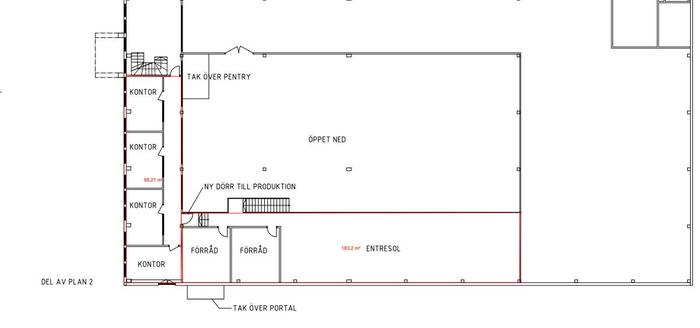
Planlösning

Fastighetsbeteckning:

Bagaren 3

Planlösning:

Flexibel lokal i två plan, med både kontor och yta för industri eller lager.

Service

Närservice:

Willys, Coop , OK Q8 mfl, nära till centrum och andra restauranger

Övrigt

Övrigt:

Emilshus erbjuder lokalt baserad förvaltning. Vi finns alltid nära tillhands när det behövs och delar gärna med oss av vårt breda kunnande inom lokal- och fastighetsfrågor. Vi har lokal närvaro och engagemang för din verksamhet. Tillsammans hittar vi kreativa lösningar för att göra din arbetsplats så bra som möjligt. Du som kund är alltid i vårt fokus.

Kontraktlängd:

Förhandlingsbart

Kontrakttyp:

Förstahandskontrakt

Tillträde:

Omgående.

Kontakta Annonsör

Carl-Johan Bergström

Carl-Johan Bergström