Kungsgatan 66

Butik/Industri/Lager, 2000 m2, Uppsala, Kungsängen

Hyra: Kontakta annonsören

Nu finns chansen att förhyra flexibla ytor om ca 2000 kvm belägna på den vältrafikerade Kungsgatan
Nu finns chansen att förhyra flexibla ytor om ca 2000 kvm belägna på den vältrafikerade Kungsgatan som i dagsläget är ett garage med möjlighet att nyttja till annan verksamhet!
Tillhörande lokalen finns även två lokaler i markplan om 63 och 103 kvm som kan vara passande för b la kundmottagning i direkt anslutning till källarplan.

Omgivning

Företag i närheten:

Vid Resecentrum finns det ett bra utbud av service med matbutiker, caféer och restauranger. Det tar ca 10 minuter att promenera till gågatan mitt i city och där finns ett generöst utbud av service med ett flertal caféer, restauranger och ett varierat utbud av butiker. Bara ett stenkast från lokalen finns även livsmedelsbutiker, klädbutiker och restauranger

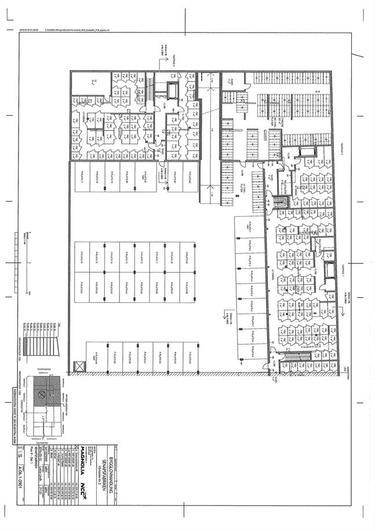
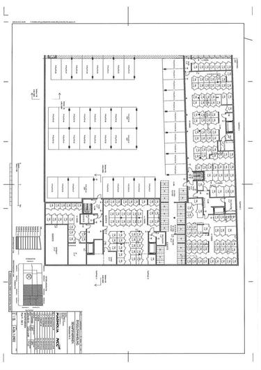
Planlösning

Byggår:

2021

Planlösning:

2000 kvm lämpade för gym, lager, butik eller garage med möjlighet till ytterligare ytor i markplan.

Kommunikationer

Härifrån är det goda kommunikationer då Resecentrum ligger ett stenkast från lokalen. Resecentrum är navet för Uppsalas tåg- och busskommunikationer.
Det går snabbt att ta sig via Kungsgatan till de större påfarterna kring Uppsala.

Kontakta Annonsör

Edvin Nicholls

Edvin Nicholls