Dokument

VIVST[…].VIVSTAMON 1-27 - KABELVÄGEN 5

Kabelvägen 5

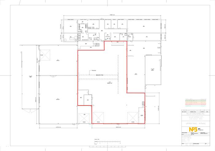
Industri/Kontor/Lager, 500 - 642 m2, Timrå

Lokalen är belägen inom Timrå industriområde och har ett bra logistikläge. Kontor och personalutrymmen finns tillgängliga eller kan tillskapas efter behov,
Det finns två st portar med måtten 4 x 4,5 (BxH). Kontakta oss för mer information och visning!

Omgivning

Torsboda, Timrå Industriområde

Planlösning

Se ritning

Kommunikationer

Bra läge med närhet till E4, Birsta (E14) samt Torsboda.

Service

Lunchrestauranger finns inom närområdet

Övrigt

Övrigt

Fiber finns i fastigheten

Kontakta Annonsör

Håkan Andersson

Håkan Andersson