Centralgatan 12

Butik/Industri/Lager, 250 - 990 m2, Tierp

Hyra: Kontakta annonsören

Mitt i centrala Tierp finns denna butikslokal hyresledig!
Mitt i centrala Tierp finns denna lokal lämplig för butik, centralt lager, bilhall eller liknande hyresledig!
I lokalerna har livsmedelsbutiken ICA bedrivits i flera år som nu ska byta lokaler.

Alla frågor rörande lokalen ska ställas till mäklaren Claes Du Rietz på Mäklarhuset Kommersiella.

Omgivning

Omgivning/natur:

Tierp är en tätort i norra Uppland och centralort i Tierps kommun, Uppsala län. Orten ligger mellan Uppsala i söder (56 km) och Gävle i norr (47 km).
Genom sitt läge vid motorvägen E4 drygt halvvägs mellan Uppsala och Gävle och med en järnvägsstation där alla lokaltåg (Upptåget) och flertalet regionaltåg stannar har Tierp under senare årtionden utvecklats till en pendlingsort.
Här finns ett generöst utbud av service med flera butiker. livsmedelsbutiker, café och lunchrestaurangen.

Företag i närheten:

Generöst utbud av service då lokalen ligger mitt i centrala Tierp.

Vägbeskrivning:

Ta avfart 193 för väg 292 mot Hargshamn/Gimo/Söderfors/Tierp 450 m. I rondellen tar du 3:e avfarten in på väg 292 ca 900 m.
I rondellen, fortsätt rakt fram in på Industrigatan 500 m. Sväng höger till Gävlevägen 1,1 km. Sväng vänster till Södra Esplanaden om ca 240 m.
Sväng vänster vid 2:a tvärgatan in på Centralgatatan till nr 12.

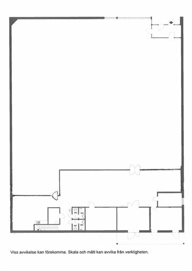
Planlösning

Planlösning:

Lokalen om 990 kvm är fördelad på en öppen butiksyta, en lagerdel och personalytor. I lagerdelen finns det en port för inlastning. Det är handikappanpassade ytor med handikapptoaletter, rullstollsanpassade trösklar och automatiska dörrar vid entrén. Möjligheten finns att dela av och hyra en mindre del av den totala ytan där minsta yta blir ungefär 250 kvm.

Kommunikationer

Goda kommunikationer med både tåg och bussar samt nära E4:an.

Kontakta Annonsör

Claes Rietz

Claes Rietz