Verkstadsgatan 9

Industri/Lager, 2810 m2, Tibro

Hyra: Kontakta annonsören

Industri- och lagerfastighet med möjlighet till snabbt tillträde
Ljusa verkstadslokaler om ca 2810 kvm på bra läge i Tibro. Lokalerna kan hyras ut både som lager eller för industri/produktionsändamål.
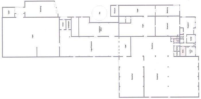
Ytorna fördelar sig över flera olika sektioner. Fastigheten är byggd i omgångar mellan åren 1959 och 1984 samt ombyggd i början av 2000-talet.
Kontorsdelen har en trevlig entré och lämpar sig väl för att ta emot kunder om man exempelvis har en liten utställning i anslutning till kontoret.

Lokalen är tillgänglig omgående. Kontakta oss för mer info.

Planlösning

Fastighetsbeteckning:

Fåtöljen 6

Byggår:

1959

Kontakta Annonsör

Anders Hedenskog

Anders Hedenskog