Speditionsvägen 47

Industri/Kontor/Lager, 373 m2, Stockholm, Länna

Hyra: Kontakta annonsören

Effektivt lager/kontor om ca 373 kvm

Planera din verksamhet i mycket bra läge i Länna. God exponering och bra logistiska förutsättningar.

BESKRIVNING

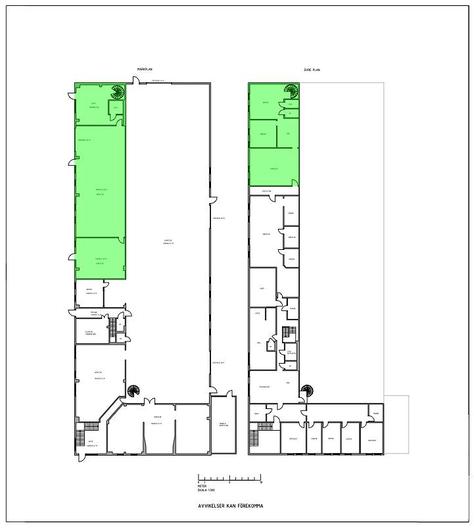
Nu finns möjlighet att hyra en flexibel lokal om totalt 373 kvm fördelat på två plan, strategiskt belägen på Speditionsvägen 47 i Länna - ett etablerat och expansivt företagsområde med god tillgänglighet. 

Bottenplanet om 244 kvm erbjuder effektiv yta för lager eller produktion med port i markplan, vilket möjliggör smidig in- och utlastning. Övre plan om 129 kvm används idag för lager/produktion men lämpar sig även utmärkt för kontor eller kombinerad verksamhet.

Lokalen har en takhöjd om ca 3,25 meter och en flexibel planlösning som passar flera typer av verksamheter. I direkt anslutning till lokalen finns parkeringsmöjligheter för både personal och besökare.

Ett stort mervärde är det goda skyltläget, vilket ger hög exponering mot förbipasserande trafik - perfekt för verksamheter som vill stärka sin synlighet.

VISNING/KONTAKT

Vänligen respektera säljarens / hyresvärdens önskemål om bokad visning.

För mer information eller visning av objektet, hör av er till Locus Advice genom kontaktformuläret eller ring Tim Ringdahl Liljegren på tel 08-558 094 41.


Växeln är öppen helgfria vardagar mellan 08.30-17.00
Locus Advice tel 08-558 094 40

LOCUS ADVICE

Locus Advice är ett fastighetskonsultbolag med fokus på kommersiella fastigheter och lokaler.
Vi arbetar med


  • Lokaluthyrning

  • Lokalöverlåtelser 

  • Fastighetsöverlåtelse

  • Transaktionsrådgivning

  • Värdering

  • Projektledning

  • Vi representerar även hyresgäster som vill ha hjälp med sitt lokalsökande.


Genom etablerade samarbeten med både stora och små fastighetsägare har vi tillgång till ett stort utbud av lokaler utöver vad vi kan marknadsföra i vår egen regi. Via dessa samarbeten kan vi med stor sannolikhet hjälpa er hitta den lokal ni söker efter.

Kontakta Annonsör

Tim Liljegren

Tim Liljegren