Dokument

Planritning -Måseskär 5.pdf

Väderögatan 7

Industri/Kontor/Lager, 1300 m2, Malmö, Östra Hamnen

Hyra: Kontakta annonsören

Flexibel lagerlokal med 8 meters takhöjd, flera lastportar och goda anpassningsmöjligheter!

Nu finns möjlighet att hyra enmodern lagerlokal om 1 300 kvmi en logistikfastighet påinhägnat område, idealisk för företag med höga krav på lagerhantering och logistik. Lokalen är i mycket gott skick och kan anpassas efter era specifika behov.

Lokalens höjdpunkter:


  • Inflyttningsklar- möjlighet till omgående tillträde

  • Effektiva lastningsmöjligheter: 3 lasthus + 1 markport

  • Rymligt höglagermed hela 8 meters takhöjd

  • Sprinklersysteminstallerat för ökad säkerhet

  • Befintligt pallställageingår i hyran - redo för verksamhet direkt

  • Faciliteter: mindre kontorsrum, förråd, omklädningsrum och WC

  • Gott omparkeringsplatseri direkt anslutning till lokalen

  • Anpassningsmöjligheter: kontorsytor och personalfaciliteter kan utökas enligt era önskemål (se planritning för förslag)

Optimalt logistikläge

Östra Hamnen är ett utbrett och väletablerat industriområde på centralt läge vid stadens norra infartsleder, endast3 kilometer norr om centrala Malmö. Här finns goda transportförbindelser via Västkustvägen vidare till Inre Ringvägen, E6/E20 och E22. Området präglas av lättindustri samt lager- och logistikverksamheter och det erbjuds ett enklare serviceutbud av handel och lunchrestauranger. Det finns goda kollektivtrafikförbindelser med buss till centrala Malmö.

Varför denna lokal?


  • Funktionalitet och flexibilitet: Anpassningsbar layout och redo för omedelbar drift

  • Säkerhet och effektivitet: Sprinklersystem, pallställage och hög golvbärighet

  • Perfekt för logistik och lager: Smidiga lastningsmöjligheter och strategiskt läge

Kontakta oss idag för mer information eller för att boka en visning av lokalen!

Omgivning

Företag i närheten:

PostNord, Mechanum, INR Försäljning Sverige AB, Exakta Print AB och Bring

Parkeringsmöjligheter/garage:

Fri parkering

Vägbeskrivning:

Direkt anslutning till Västkustvägen som leder till Inre Ringvägen, E6/E20 och E22

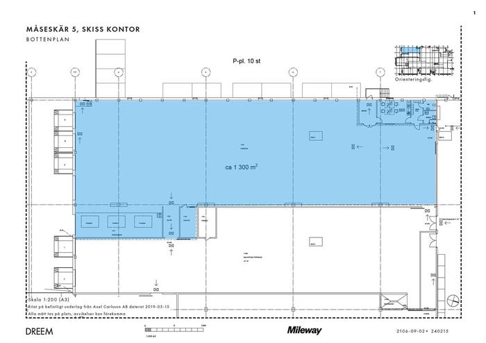
Planlösning

Fastighetsbeteckning:

Måseskär 5

Byggår:

1977

Våningsplan:

1 av 2

Planlösning:

Se planritning bland bilder/PDF.

Kommunikationer

Goda kollektivtrafikförbindelser med buss till centrala Malmö

Service

Närservice:

Enklare serviceutbud av handel och lunchrestauranger i närområdet

Övrigt

Takhöjd:

8 m

Lokalen kan nås via:

3 lasthus + 1 markport

Hiss:

Ja

Kontraktlängd:

Förhandlingsbart

Kontrakttyp:

Förstahandskontrakt

Tillträde:

Omgående

Kontakta Annonsör

Jesper Hofmann

Jesper Hofmann