Lundavägen 140
Kirseberg, Malmö, 436 m2
Flexibel kontorslokal med lager/verkstadsyta - Snabbt tillträde möjligt Nu finns möjlighet att hyra en fräsch och flexibel lokal på436 kvm,...
Dokument
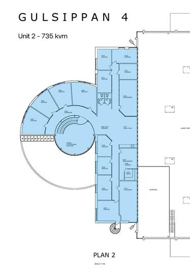
Gulsippan 4_Plan 1-2.pdfIndustri/Kontor/Lager, 735 m2, Malmö, Kirseberg
Hyra: Kontakta annonsören
Nu finns möjlighet att hyra en kombilokal om totalt735 kvmi enrenoverad kontors- och lagerfastigheti Valdemarsro, Malmö. Lokalen erbjuder både praktiska funktioner och arkitektoniska detaljer som ger arbetsmiljön karaktär och kvalitet.
Lokalens lagerdel om220 kvmligger i markplan och nås viaegen markport, vilket ger smidiga logistikflöden. Intill ligger kontorsdelen, fördelad på två våningsplan, medöppna ytor, mötesrum och generöst ljusinsläpptack vare stora glaspartier och takfönster. Interiören håller genomgåendehög standard, medpentry, WCoch genomtänkt design.
Unika arkitektoniska inslag somrunda väggar, glasväggar och en glaskub-liknande entréger lokalen en representativ och trivsam atmosfär. Lokalen är försedd med3-fas el och LED-belysningsamt fri parkering i direkt anslutning till fastigheten.
Området - Valdemarsro/Bulltofta:
Valdemarsro ligger 5 kilometer nordost om centrala Malmö och är, med Bulltofta inräknat, ett av de största och mest expansiva företagsområden i Malmö präglat av lätt industri, lager- och logistikverksamheter samt viss handel. Området ligger strategiskt placerat i direkt anslutning till Inre Ringvägen som leder vidare till E6/E20, E22 och E65 på ett par minuter. Enklare serviceutbud av lunchrestauranger och viss handel finns att tillgå i närområdet. Det finns goda kollektivtrafikförbindelser med buss till centrala Malmö.
Välkommen att kontakta oss för mer information eller för att boka visning.
Närhet till Bulltofta rekreationsområde med stora grönområden
Företag i närheten:XXXLutz, Ahlsell, Swedol, Audi och Volkswagen
Parkeringsmöjligheter/garage:Gott om parkeringsplatser i anslutning till lokalen
Skyltläge:Bra exponering av skyltläge
Vägbeskrivning:Direkt anslutning till Inre Ringvägen med anslutning från E6/E20, E22 och E65
Gulsippan 4
Byggår:1992
Våningsplan:1 av 2
Planlösning:Se planritning bland bilder.
Goda kollektivtrafikförbindelser med buss till centrala Malmö
Enklare serviceutbud lunchrestauranger och viss handel i närområdet
Egen markport till lagerdelen
Hiss:Ja
Kontraktlängd:Förhandlingsbart
Kontrakttyp:Förstahandskontrakt
Tillträde:2026-01-01.