Dokument

Flygledaren 9_Planritning.pdf

Höjdrodergatan 24

Industri/Kontor/Lager, 1613 - 3613 m2, Malmö, Bulltofta

Hyra: Kontakta annonsören

Rymliga lagerytor med 3 000 kvm mark och flexibel uppdelning i expansiva Bulltofta

Nu finns möjligheten att hyra flexibla och välutrustade lagerytor inklusive kontor om totalt 3 613 kvm i populära Bulltofta industriområde. Lokalerna är i gott skick och kan hyras som en sammanhängande enhet eller delas upp i två separata lokaler. De är väl lämpade för exempelvis grossister, åkeriverksamhet, produktion eller terminalverksamhet.

Lokalens höjdpunkter:


  • Totalt 7 lasthus och 1 markport för smidig lastning och lossning


  • Takhöjd mellan 6-7,3 meter för effektiv lagring


  • Kontorsytor med kök/pentry, omklädningsrum och WC


  • Uppställningsyta om 3 000 kvm för lastbilar och personbilar


Flexibla lösningar:


  • LED-konvertering vid nyuthyrning för bättre belysning och lägre energikostnader


  • Möjlighet att anpassa lokalerna efter verksamhetens behov


  • Uppställningsytan kan hägnas in för ökad säkerhet


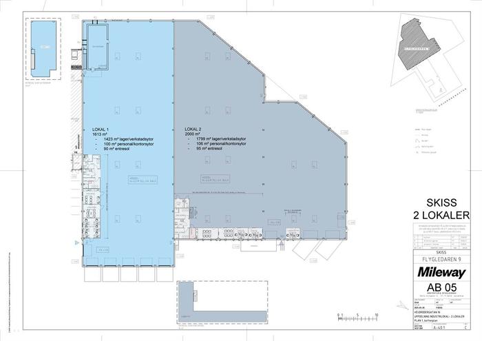
Alternativ vid uppdelning:

Lokal 1 - 1 613 kvm


  • 1 423 kvm lager/verkstad


  • 100 kvm personal-/kontorsytor


  • 90 kvm entresol


  • 5 lasthus + 1 markport


Lokal 2 - 2 000 kvm


  • 1 799 kvm lager/verkstad


  • 106 kvm personal-/kontorsytor


  • 95 kvm entresol


  • 2 lasthus (med möjlighet till 2 extra lastportar)


Strategiskt läge i Bulltofta
Bulltofta industriområde ligger 5 km nordost om centrala Malmö och är ett av de största och mest expansiva företagsområden i Malmö präglat av lätt industri, lager- och logistikverksamheter samt viss handel. Området ligger strategiskt placerat i direkt anslutning till Inre Ringvägen som leder vidare till E6/E20, E22 och E65 på ett par minuter. Enklare serviceutbud av lunchrestauranger och viss handel finns att tillgå i närområdet. Det finns goda kollektivtrafikförbindelser med buss till centrala Malmö.

Kontakta oss gärna för att diskutera passande alternativ för just er verksamhet!

Omgivning

Omgivning/natur:

Närhet till Bulltofta rekreationsområde med stora grönområden

Företag i närheten:

XXXLutz, Ahlsell, Swedol, Audi och Volkswagen

Parkeringsmöjligheter/garage:

Möjlighet att teckna tilläggsavtal för parkering i anslutning till lokalen

Skyltläge:

Bra exponering av skyltläge mot Höjdrodergatan

Vägbeskrivning:

Direkt anslutning till Inre Ringvägen med anslutning från E6/E20, E22 och E65

Planlösning

Fastighetsbeteckning:

Flygledaren 9

Byggår:

1992

Våningsplan:

1

Planlösning:

Se bilder/PDF.

Kommunikationer

Goda kollektivtrafikförbindelser med buss till centrala Malmö, busshållsplats precis utanför fastigheten

Service

Närservice:

Enklare serviceutbud lunchrestauranger och viss handel i närområdet

Övrigt

Takhöjd:

7,3 m

Lokalen kan nås via:

7 lasthus + 1 markport (med möjlighet till 2 extra portar)

Kontraktlängd:

Förhandlingsbart

Kontrakttyp:

Förstahandskontrakt

Tillträde:

Omgående.

Kontakta Annonsör

Hannah Reeder

Hannah Reeder