Dokument

Flintan 3 - Källarplan.pdf

Borrgatan 4

Industri/Lager, 285 m2, Malmö, Hamnen - övrigt

Hyra: Kontakta annonsören

Lagerlokal om 285 kvm med möjlighet till anpassningar och flexibla hyresvillkor!

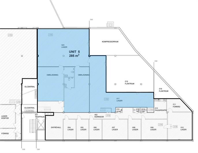
Kontor- och lagerfastighet med ledig lagerlokal om 285 kvm på bottenplan. Lagret består av två delar med egen ingång på baksidan av byggnaden. Rymliga omklädningsrum med skåp samt WC finns tillgängligt. Här finns möjlighet till att anpassa lokalen efter behov. Fastigheten är delvis inhägnad och har öppna rangerytor samt parkeringsmöjligheter med fri parkering. 

Östra Hamnen är ett utbrett och väletablerat industriområde på centralt läge vid stadens norra infartsleder, endast 3 kilometer norr om centrala Malmö. Här finns goda transportförbindelser via Västkustvägen vidare till Inre Ringvägen, E6/E20 och E22. Området präglas av lättindustri samt lager- och logistikverksamheter och det erbjuds ett enklare serviceutbud av handel och lunchrestauranger. Det finns goda kollektivtrafikförbindelser med buss till centrala Malmö.

Omgivning

Företag i närheten:

Cargobike of Sweden, INR Försäljning Sverige AB, Bluebox.se, Exakta Print AB och Bring

Parkeringsmöjligheter/garage:

Fri parkering

Vägbeskrivning:

Direkt anslutning till Västkustvägen som leder till Inre Ringvägen, E6/E20 och E22

Planlösning

Fastighetsbeteckning:

Flintan 3

Byggår:

1963

Planlösning:

Se planritning bland bilder.

Kommunikationer

Goda kollektivtrafikförbindelser med buss till centrala Malmö

Service

Närservice:

Enklare serviceutbud av handel och lunchrestauranger i närområdet

Övrigt

Kontraktlängd:

Förhandlingsbart

Kontrakttyp:

Förstahandskontrakt

Tillträde:

Omgående.

Kontakta Annonsör

Hannah Reeder

Hannah Reeder