Kummingatan 9

Industri/Kontor/Lager, 2699 m2, Göteborg, Angered

Hyra: Kontakta annonsören

Ledigt lager med generösa takhöjder!

Nu finns möjlighet att hyra en rymlig lagerlokal på Kummingatan 9 i Angered. Lokalen är väl lämpad för industri- och lagerverksamhet och erbjuder stora, öppna ytor med generös takhöjd. Tack vare flera portar är in- och utlastning smidig, vilket gör lokalen praktisk för både lagring och logistik. Kombinationen av volym, flexibilitet och tillgänglighet gör detta till ett intressant alternativ för verksamheter med behov av effektiva ytor. 

Omgivning

Omgivning/natur:

Fastigheten ligger i Lövgärdet, omgivet av grönområden och kuperad terräng. Här finns närhet till natur- och rekreationsstråk som ger möjlighet till avkopplande promenader och frisk luft i direkt anslutning till arbetsplatsen.

Företag i närheten:

I närområdet finns en blandning av industri, lager och småföretag, vilket skapar ett levande företagsklimat. Området ligger nära Lövgärdets centrum och Angered centrum där det finns handel, service och flera etablerade verksamheter. Närheten till både lokala aktörer och större företag i Angered ger goda möjligheter till samarbeten och nätverk.

Parkeringsmöjligheter/garage:

Fastigheten har goda kommunikationer med kollektivtrafik. Busslinjer trafikerar området med hållplatser på gångavstånd, vilket ger smidiga förbindelser till Angered centrum, där både spårvagn och övrig service finns. Med bil nås E6 och centrala Göteborg enkelt via Angeredsleden.

Skyltläge:

Lokalen har ett bra skyltläge mot intilliggande väg, vilket ger god synlighet för förbipasserande trafik. Skyltning kan med fördel placeras på fasaden för att stärka verksamhetens exponering.

Vägbeskrivning:

Från centrala Göteborg (söderifrån):
Kör E6 norrut och ta av vid avfart Angeredsleden (väg 190) mot Angered. Följ skyltarna mot Lövgärdet/Gunnared och sväng av vid Kummingatan. Fastigheten ligger på nummer 9.

Från norr (t.ex. Ale/Kungälv):
Kör E45 söderut och ta av mot Angeredsleden (väg 190). Följ skyltning mot Angered och vidare mot Lövgärdet. Sväng in på Kummingatan, fastigheten finns på nummer 9.

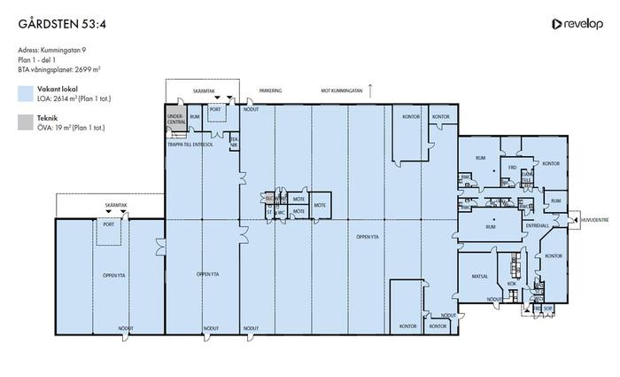
Planlösning

Fastighetsbeteckning:

Gårdsten 53:4

Byggår:

1980

Våningsplan:

1

Planlösning:

Lokalen är indelad i tre sektioner. Den högra delen utgörs av ett lager med normal takhöjd om ca 3,4-4,6 meter. I mitten och den vänstra delen finns lagerytor med dubbel takhöjd, ca 6-7 meter, vilket ger gott om volym och flexibilitet för olika typer av verksamhet.

Kommunikationer

Enkelt att ta sig både med bil och kommunalt.

Service

Närservice:

I närheten finns Lövgärdets centrum med mataffär, restaurang, café och viss närservice. På kort avstånd ligger även Angered centrum som erbjuder ett större utbud av butiker, apotek, banker och restauranger.

Övrigt

Övrigt:

Lokalen kan anpassas efter verksamhetens behov och erbjuder en kombination av stora öppna ytor och bra tillgänglighet. Läget i Lövgärdet ger närhet till både service och grönområden, vilket skapar en trivsam helhet för både anställda och besökare.

Takhöjd:

7 m

Uppvärmning:

Fjärrvärme

Lokalen kan nås via:

Lokalen har portar i markplan som ger god framkomlighet och gör in- och utlastning smidig för både mindre och större fordon. De generösa portarna i kombination med höga lagerytor skapar flexibla lastmöjligheter anpassade för industri- och lagerverksamhet.

Miljöcertifiering:

BREEAM

Den här certifieringen är världens mest använda. Breeam används för befintliga och nybyggda kommersiella byggnader. 2013 kom en svensk version som utgår från svensk lagstiftning, svenska metoder och arbetssätt. Breeam är en heltäckande certifiering med många indikatorer. Här görs bedömningar inom projektledning, energianvändning, inomhusklimat, vattenhushållning, avfallshantering, markanvändning, påverkan på närmiljön, byggmaterial och föroreningar samt byggnadens läge i förhållande till allmänna kommunikationsmedel.

Källa

Kontrakttyp:

Förstahandskontrakt

Tillträde:

Enligt överenskommelse

Kontakta Annonsör

Michelle Binen

Michelle Binen