Dokument

Ritning_Backa_30-4_Importgatan_Lokal C.pdf

Importgatan 23

Industri/Kontor/Lager, 3279 m2, Göteborg, Backadal

Hyra: Kontakta annonsören

Toppmodern lager- och kontorslokal med 10 m takhöjd på strategiskt läge i Hisings Backa - skräddarsys i samråd med hyresgäst

Nu finns möjlighet att hyra en rymliglager- och kontorslokal om totalt ca 3 279 kvmiHisings Backa, där lokalen kommer atttotalrenoveras och anpassas i samråd med ny hyresgäst. Ett utmärkt val för företag inomlogistik, e-handel, produktion eller teknisk servicemed behov av både höglager och moderna kontorsytor.

Lokalens egenskaper:


  • Totalyta ca 3 279 kvm


    • 2 772 kvm höglagermedtakhöjd ca 10 meter


    • 507 kvm kontor och personalutrymmen




  • Två markportari fasad för smidig in- och utlastning


  • Generös gemensam gårdsyta- goda rangermöjligheter för lastbil


  • Kontorsentré mot Importgatan


  • Lokalentotalrenoveras inför tillträde- ytskikt och funktioner uppdateras i dialog med hyresgästen


  • Tillträde enligt överenskommelse


Kontorsdelen erbjuder:


  • Blandad planlösning: öppna ytor, separata kontorsrum och mötesrum


  • Kök, lunchrum och tillgång till gemensam innergård


  • Omklädningsrum för dam och herr, med dusch och bastu


Läge - strategiskt i Hisings Backa:

Fastigheten ligger iHisings Backa, ca7 km från centrala Göteborg, med snabb access tillE6och övriga större trafikleder. Området är ett etablerat kluster förhandel, lager, logistik och produktion, med närhet till Stigs Center och Bäckebol Köpcenter där butiker och restauranger finns.Goda kollektivtrafikförbindelser med buss gör läget lättillgängligt även för personal och besökare.

Omgivning

Företag i närheten:

Volvo Car, Swedol, Dagab, PostNord, BGM Logistics AB och Budbee

Parkeringsmöjligheter/garage:

Gott om parkeringsplatser för personal och kunder

Skyltläge:

Skyltläge mot Importgatan

Vägbeskrivning:

Direkt anslutning till E6

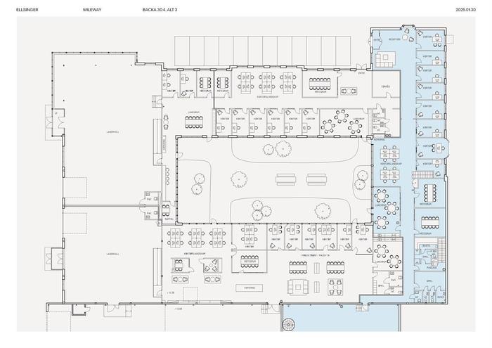
Planlösning

Fastighetsbeteckning:

Backa 30:4

Byggår:

1975

Renoveringsår:

2025

Planlösning:

Se planritning bland bilder/PDF.

Kommunikationer

Goda kollektivtrafikförbindelser med buss till centrala Göteborg

Service

Närservice:

Närhet till levande handelsplats kring Stigs Center och Bäckebol Köpcenter med ett brett serviceutbud av butiker, gym och restauranger

Övrigt

Takhöjd:

10 m

Lokalen kan nås via:

2 markportar, egen entré via Importgatan till kontorsdel.

Hiss:

Ja

Kontraktlängd:

Förhandlingsbart

Kontrakttyp:

Förstahandskontrakt

Tillträde:

Enligt överenskommelse

Kontakta Annonsör

Erika Borsing

Erika Borsing