Dokument

Planritning -Mileway - Backa 27-43 Göteborg.pdf

Backa Bergögata 5

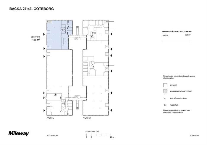
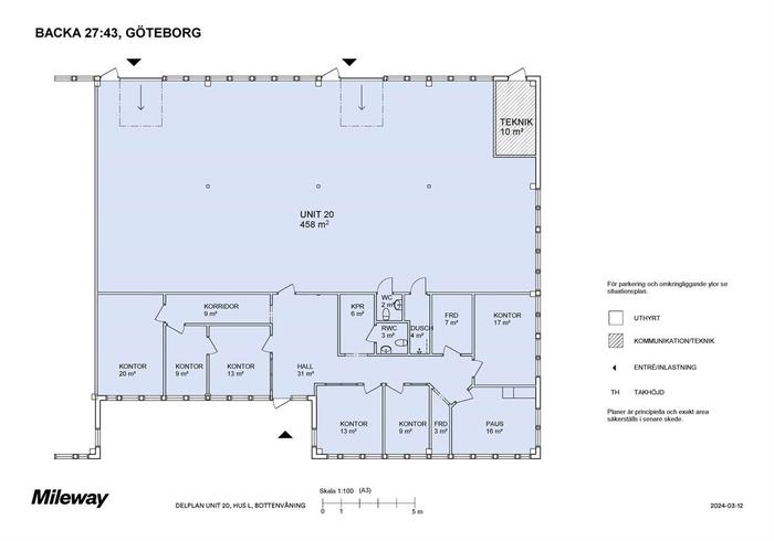
Industri/Kontor/Lager, 458 m2, Göteborg, Backadal

Hyra: Kontakta annonsören

Funktionell lagerlokal med två markportar och ljus kontorsdel - möjlighet till snabb inflyttning

Nu finns en välplanerad kombilokal om totalt458 kvmatt hyra i populära Backa, Göteborg. Lokalen kombinerar praktiska lagerytor med en modern kontorsdel och är idealisk för verksamheter som söker en flexibel och funktionell arbetsyta.

Lokalbeskrivning


  • Lagerdel: 276 kvm med två markportar för smidig in- och utlastning och en takhöjd på cirka 3,5 meter. Perfekt för logistik och lagerverksamhet.

  • Kontorsdel: 182 kvm med gott ljusinsläpp, bestående av kontorsrum i olika storlekar, mötesrum och faciliteter såsom pausyta, pentry/kök, dusch och WC.

  • Tillgänglighet: Lokalen är belägen på markplan och erbjuder fri parkering direkt utanför fastigheten för enkel åtkomst.

Läge och fördelar

Fastigheten ligger med direkt access tillBacka Bergögata, i ett av Göteborgs mest attraktiva industriområden. Backa präglas av en mix av handel, logistik och tillverkning och har ett strategiskt läge endast7 km norr om centrala Göteborgoch i nära anslutning tillE6.

Området erbjuder närhet tillStigs CenterochBäckebol Köpcenter, där du hittar ett brett utbud av service, butiker och restauranger. Goda kommunikationsmöjligheter finns också via buss, som enkelt tar dig till centrala Göteborg och kringliggande områden.

Denna lokal erbjuder både funktion och flexibilitet, med möjlighet tillsnabb inflyttning. Perfekt för företag som söker en lösning som kombinerar lager och kontor i ett attraktivt och lättillgängligt läge.

Kontakta oss för mer information eller för att boka en visning!

Omgivning

Företag i närheten:

Volvo Car, Swedol, Dagab, PostNord, BGM Logistics AB och Budbee

Parkeringsmöjligheter/garage:

Fri parkering

Vägbeskrivning:

Direkt anslutning till E6

Planlösning

Fastighetsbeteckning:

Backa 27:43

Byggår:

1990

Renoveringsår:

2008

Våningsplan:

1 av 2

Planlösning:

Se bilder/PDF.

Kommunikationer

Goda kollektivtrafikförbindelser med buss till centrala Göteborg

Service

Närservice:

Närhet till levande handelsplats kring Stigs Center och Bäckebol Köpcenter med ett brett serviceutbud av butiker, gym och restauranger

Övrigt

Takhöjd:

3,5 m

Lokalen kan nås via:

Två markportar

Kontraktlängd:

Förhandlingsbart

Kontrakttyp:

Förstahandskontrakt

Tillträde:

Omgående

Kontakta Annonsör

Markus Christensson

Markus Christensson