Stenvretsgatan 2

Industri/Kontor/Lager, 3153 m2, Enköping

Hyra: Kontakta annonsören

Nyrenoverade lagerlokaler med höglager och flertalet lastportar på bästa logistikläge i Enköping

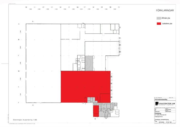
Denna industrifastighet erbjuder en modern lagerlokal om totalt3 153 kvm, varav3 053 kvm lagerytaoch100 kvm kontor. Byggnaden renoverades 2018 och håller idag en hög standard med fräscha, funktionella ytor.

Lagret på markplan är rymligt och praktiskt planerat med åtta meters takhöjd, god bärighet och åtta dockningsportar som gör in- och utlastning smidig. Kontorsdelen har öppen planlösning med pentry, omklädningsrum och WC - perfekt för en verksamhet som vill samla både lager och arbetsplatser under samma tak.

Fastigheten ligger på ett inhägnat område där det även finns rangerytor och parkering i direkt anslutning. Dessutom får man ett mycket bra skyltläge med exponering mot E18, vilket stärker synligheten för verksamheten.

Läget iStenvreten, Enköping, är optimalt för logistik. Härifrån har man direkt tillgång till E18 med snabba förbindelser till Stockholm och Västerås. I närområdet finns lunchrestauranger och viss service inom gångavstånd, och kollektivtrafiken erbjuder både lokalbussar till centrala Enköping och regionbussar till Uppsala och Västerås.

Omgivning

Företag i närheten:

Swedol, Basalt, Conelement, Fruktjuice, Postnord, Chiquita, Plåthuset och Q-Star

Parkeringsmöjligheter/garage:

Fri parkering

Skyltläge:

Väldigt bra exponering av skyltläge mot E18

Vägbeskrivning:

Direkt anslutning till E18

Planlösning

Fastighetsbeteckning:

Stenvreten 9:4

Byggår:

1991

Renoveringsår:

2018

Våningsplan:

1

Planlösning:

Se planritning bland bilder.

Kommunikationer

Goda kollektivtrafikförbindelser med lokalbuss till centrala Enköping samt regionbuss till Uppsala och Västerås

Service

Närservice:

Lunchrestauranger och lättare serviceutbud finns inom gångavstånd

Övrigt

Takhöjd:

8 m

Lokalen kan nås via:

Åtta lasthus

Hiss:

Ja

Kontraktlängd:

Förhandlingsbart

Kontrakttyp:

Förstahandskontrakt

Tillträde:

Omgående.

Kontakta Annonsör

Besart Ferizi

Besart Ferizi