Textilvägen 2

Industri/Kontor/Lager, 991 m2, Borås

Hyra: 250 kr/m²/år

Lagerlokal med kontor, stor port och uppställningsyta - 15 min från Borås!

Lagerlokal med kontor och uppställningsyta - ca 1 000 kvm i Viskafors

Letar du efter en flexibel lokal för lager, logistik, lättare produktion eller distribution - med bra access och personalytor? Då kan denna lokal vara helt rätt för dig.

Fastigheten ligger i Viskafors, cirka 15 minuter från Borås centrum och 50 minuter från Göteborg. Här erbjuds en välplanerad lokal med goda ytor, funktionella kontor och smidiga logistiska förutsättningar.

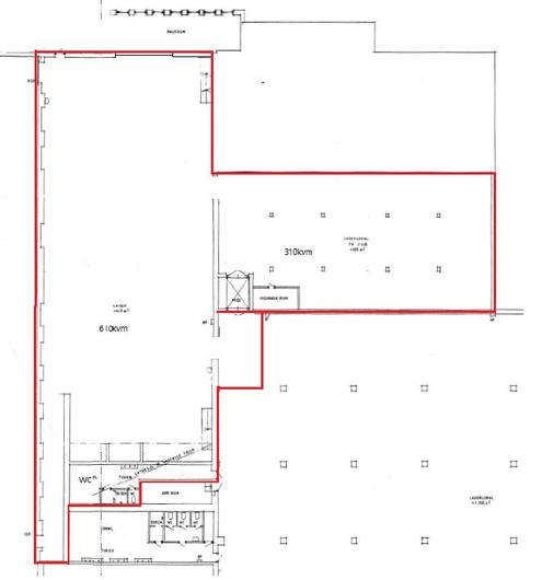
Ytor:


  • Lagerdel 1:ca 610 kvm med ca 5 meter takhöjd


  • Lagerdel 2:ca 320 kvm


  • Entresolplan:ca 70 kvm medkontor, konferensrum, pentry och lunchrum


Tillgänglighet & logistik:


  • Stor markportför smidig lossning och lastning


  • Truckkörning möjlig inne i lokalen


  • Vändyta för större fordondirekt utanför


  • Uppställningsytor utomhus


  • Gott om parkeringpå fastigheten


Teknisk standard:


  • Bergvärme- energieffektiv uppvärmning


  • Gott om el- kapacitet för verksamheter med högre effektbehov


  • Funktionellt pentry, WC och lunchrum


  • Nyligen omlagt tak


Lokalen har enrå men välskött karaktärsom passar företag som söker praktiska, lättillgängliga ytor utan onödigt lull-lull. Det finns även möjlighet att anpassa lokalen efter verksamhetens behov i dialog med hyresvärden.

Fastigheten rymmer fler lokaler, vilket ger möjlighet till framtida expansion. 

Tillträde:
Lokalen ärledig för omgående inflytt. Hyresvillkoren ärförhandlingsbaraoch vi är öppna för både kort- och långsiktiga upplägg.

Omgivning

Omgivning/natur:

Den gamla fabriken är belägen i den pittoreska skogen ett stenkast från Varbergsvägen. Längs med fastigheten strömmar Viskan, ån som rör sig hela vägen in till Borås Centrum.

Företag i närheten:

Viskafors har ca 4,000 invånare och det finns ett gott utbud av service, blandat med mataffär och lunchrestauranger. Ca 110 företag verkar i området, bland annat Bonava, Brave System, KronansDroghandel, Viskapartner med flera.

Parkeringsmöjligheter/garage:

Ja

Skyltläge:

JA

Vägbeskrivning:

Väg 40 från både Borås och Göteborg sedan är det bara att följa skyltarna mot Rydboholm / Viskafors

Planlösning

Fastighetsbeteckning:

Rydboholm 1:404

Våningsplan:

1

Antal rum:

2

Planlösning:

Lokalen är uppdelad i lager och kontor med Pentry.

Kommunikationer

Väljer du att åka kollektivt har du ett promenadavstånd på 2 min till busshållplatsen ”Daltorp Viskafors” där buss 155 avgår var 30 min och tar ca 40min in till Borås Centrum. Du kan även promenera 7 min till Viskafors Station där du når Borås Centrum på 10 min via tåg.

Övrigt

Takhöjd:

5 m

Uppvärmning:

Bergvärme

Lokalen kan nås via:

Viskafors nås enkelt med bil via Varbergsvägen, väg 27/40 på 15min från Borås Centrum och E40.

Ventilation:

Mekanisk till- och från luft

Hiss:

Ja

Kontraktlängd:

Förhandlingsbart

Kontrakttyp:

Förstahandskontrakt

Tillträde:

Enligt överenskommelse

Utgångshyra kr/m2/år:

250

Kontakta Annonsör

Tobias Falk

Tobias Falk