Kyrkvägen 6

Industri/Kontor/Lager, 2450 m2, Borås

Hyra: 200 kr/m²/år. Priset är baserat på att lokalen hyrs ut i befintligt skick på ett långsiktigt avtal.

Stor lokal med högt i tak, lastbrygga och låg hyra - 2 450 kvm i Viskafors
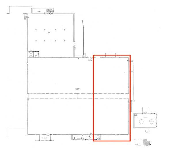
Möjligt att dela upp i minder ytor.

Letar du efter stora ytor till en förmånlig hyresnivå? På Kyrkvägen 4 i Viskafors finns nu en lokal om ca2 450 kvmsom passar utmärkt för verksamheter inomlager, produktion eller andra verksamheter som kräver större ytor.

Lokalen erbjuderhögt i tak (ca 5-6 m),god tillgänglighetvia port (ca 3x3 m) ochvändyta för större fordondirekt utanför. Det finns ävenuppställningsyta i närhetenochgott om parkeringsplatser.

Uppvärmning sker viabergvärme kopplat till nya aerotemperar, vilket ger energieffektiv drift året om. El är framdragen och det finns god kapacitet. Lokalen kan ävendelas av i mindre enhetervid behov.

På plats finns färdiga personalutrymmen i form av:


  • Konferensrum


  • Dusch och WC


  • Lunchrum


Läge

Fastigheten ligger i Viskafors, endast15 minuter från Boråsoch ca50 minuter från Göteborg. Bra pendlingsavstånd och nära till E40 via riksväg 27.

Hyresvillkor


  • Hyra:200 kr/kvm/år vid längre avtal och befintligt skick


  • Tillträde:Enligt överenskommelse


  • Möjlighet att diskutera avdelning av ytan för rätt hyresgäst


Vill du se lokalen eller veta mer?
Hör av dig så bokar vi en visning och pratar vidare om hur lokalen kan anpassas till din verksamhet.

Omgivning

Omgivning/natur:

Den gamla fabriken är belägen i den pittoreska skogen ett stenkast från Varbergsvägen. Längs med fastigheten strömmar Viskan, ån som rör sig hela vägen in till Borås Centrum.

Företag i närheten:

Viskafors har ca 4,000 invånare och det finns ett gott utbud av service, blandat med mataffär och lunchrestauranger. Ca 110 företag verkar i området, bland annat Bonava, Brave System, KronansDroghandel, Viskapartner med flera.

Parkeringsmöjligheter/garage:

Ja

Skyltläge:

JA

Vägbeskrivning:

Väg 40 från både Borås och Göteborg sedan är det bara att följa skyltarna mot Rydboholm / Viskafors

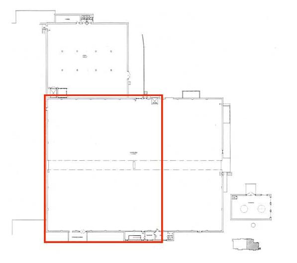
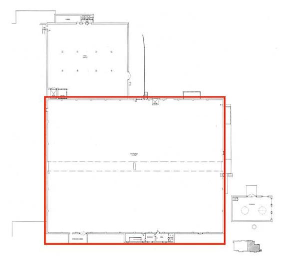
Planlösning

Fastighetsbeteckning:

Rydboholm 1:404

Våningsplan:

1

Planlösning:

Stor lageryta med tillhörande kök, lunchrum, wc, kontor och konferensrum.

Kommunikationer

Väljer du att åka kollektivt har du ett promenadavstånd på 2 min till busshållplatsen ”Daltorp Viskafors” där buss 155 avgår var 30 min och tar ca 40min in till Borås Centrum. Du kan även promenera 7 min till Viskafors Station där du når Borås Centrum på 10 min via tåg.

Övrigt

Uppvärmning:

Bergvärme

Lokalen kan nås via:

Viskafors nås enkelt med bil via Varbergsvägen, väg 27/40 på 10min från Borås Centrum.

Ventilation:

Mekanisk till- och från luft

Hiss:

Ja

Kontraktlängd:

Förhandlingsbart

Kontrakttyp:

Förstahandskontrakt

Tillträde:

Enligt överenskommelse

Utgångshyra kr/m2/år:

200

Hyresinformation:

Priset är baserat på att lokalen hyrs ut i befintligt skick på ett långsiktigt avtal.

Kontakta Annonsör

Tobias Falk

Tobias Falk