Getängsvägen 6

Butik/Industri/Kontor, 70 m2, Borås

Hyra: 4300kr/mån ink drift.

Källarlokal med ljusinsläpp på 70 kvm. Två toaletter, kök och parkering. Passar som studio, lager, kontor eller annan hobbyverksamhet

Denna flexibla källarlokal på 70 kvm erbjuder en rad möjligheter för dig som söker en prisvärd arbets- eller förvaringsyta i centrala Borås. Lokalen har ljusinsläpp som ger ett trivsamt intryck trots sitt läge, och den är utrustad med två toaletter samt ett funktionellt kök.

Accessen är smidig via en separat trappnedgång eller hiss, vilket underlättar hantering av tyngre föremål. Parkering finns i anslutning till fastigheten, vilket gör det enkelt både för dig och dina kunder eller leverantörer.

Lokalen är perfekt för många olika verksamheter, som lager, studio, hobbylokal eller ett enkelt kontor. Med ett centralt läge på Getängsvägen är det en prisvärd lösning för dig som prioriterar funktion och tillgänglighet.

Kontakta oss idag för mer information eller för att boka en visning!

Omgivning

Vägbeskrivning:

Getängsvägen 6 ligger i Borås västra del, med smidig anslutning till riksväg 40. Från Borås centrum tar det bara några minuter med bil, och du följer enklast Västerlånggatan mot Getängsvägen. För den som åker kollektivt finns hållplatser inom gångavstånd, och området är lättillgängligt för både kunder och leverantörer.

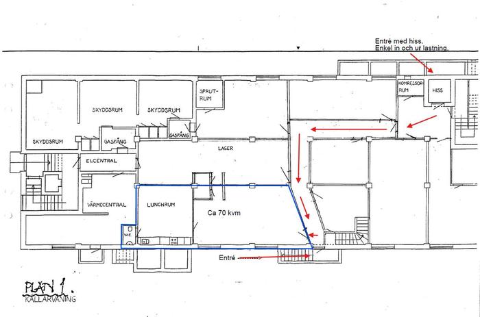
Planlösning

Planlösning:

Två separata toaletter, ett kök med tillhörande lunchrum samt en större flexibel arbetsyta.

Övrigt

Övrigt:

Finns gym i fastigheten.

Kontraktlängd:

Förhandlingsbart

Tillträde:

Enligt överenskommelse. Nuvarande hyresgäst kan släppa ytan 1 Mars

I hyran ingår:

Värme

Hyresinformation:

4300kr/mån ink drift.

Kontakta Annonsör

Tobias Falk

Tobias Falk