Getängsvägen 6

Industri/Lager/Övrigt, 15 m2, Borås

Hyra: 1000kr/mån

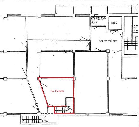
Prisvärt förråd i centrala Borås - enkel in- och urlastning via hiss.

Letar du efter ett praktiskt och prisvärt förråd i centrala Borås? Då är detta förråd ett utmärkt val. Lokalen ligger precis innanför entrén, vilket gör den extra lättillgänglig - perfekt för dig som vill slippa krångliga korridorer eller långa transporter inom fastigheten.

Du når lokalen enkelt via både hiss och trappuppgång. Hissen är dessutom kopplad till en lastbrygga, vilket underlättar vid in- och urlastning av tyngre eller skrymmande föremål.

Förrådet lämpar sig väl för förvaring av mindre inventarier, utrustning eller personliga tillhörigheter. Med sitt centrala läge på Getängsvägen har du smidig access till både Borås centrum och intilliggande vägar - en smart och funktionell lösning för dig som behöver extra förvaringsutrymme i ett lättåtkomligt och strategiskt läge.

Planlösning

Planlösning:

Lager förrådsutrymme.

Övrigt

Kontraktlängd:

Förhandlingsbart

Kontrakttyp:

Förstahandskontrakt

Tillträde:

Omgående

I hyran ingår:

Värme, el

Hyresinformation:

1000kr/mån

Kontakta Annonsör

Tobias Falk

Tobias Falk