Dokument

Ritning (1).pdf

Stuvargatan 3

Industri/Kontor/Lager, 7100 m2, Örebro

Hyra: Kontakta annonsören

Flexibel lagerfastighet med kontor och höglager i expansiva Pilängen

Välkommen till en yteffektiv och flexibel lokal om totalt7 100 kvm, perfekt för verksamheter som söker en kombination av effektiva lagerytor och funktionella kontorsytor. Fastigheten erbjuderhöglager om 6 844 kvmochkontor om 256 kvm, med stora fria ytor, goda lastningsmöjligheter och utmärkta förutsättningar för både logistik, förvaring och produktion.

Den generösa tomten medstora rangerytor och gott om parkeringskapar smidiga flöden och enkel hantering av gods. Tack vare fastighetens flexibla utformning och läge passar den lika bra för kreativa bolag som för företag med behov av långsiktig lagring och administration.

Om lokalen:


  • Total yta: ca 7 100 kvm


  • Höglager: ca 6 844 kvm med stora öppna ytor


  • Kontor: ca 256 kvm med flexarbetsplatser, konferensrum och lunchmatsal


  • 6 lasthus och 2 markportar


  • Stora rangerytor och inhägnat område


  • LED-belysning


  • Omklädningsrum, pausytor och WC


Strategiskt läge i Pilängen, Örebro

Fastigheten ligger iindustriområdet Pilängen, endast cirka3 km väster om centrala Örebro. Området erbjuder ettoptimalt logistiskt lägemed direkt närhet tillE18 och E20, vilket ger smidig tillgång till både regionala och nationella transportvägar. I närområdet finns flera större lageretableringar, vilket gör Pilängen till en attraktiv plats för logistikintensiva verksamheter.

Busshållplats finns i närheten, vilket gör området lättillgängligt även för medarbetare och besökare.

Ta chansen att etablera er verksamhet i enmodern och flexibel lagerfastighetmed bådehöglager och kontor- på en plats som kombinerarfunktionalitet, tillgänglighet och tillväxtpotential.

Omgivning

Företag i närheten:

Schenker, Svedol, XXL, Ebrex, Lidl och DSV

Parkeringsmöjligheter/garage:

Fri parkering

Skyltläge:

Bra skyltläge

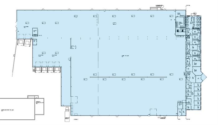
Planlösning

Fastighetsbeteckning:

Chauffören 2

Byggår:

1991

Våningsplan:

1 av 1

Planlösning:

Se bland bilder/PDF.

Kommunikationer

Fastigheten ligger i industriområdet Pilängen, beläget cirka 3 km väster om centrala Örebro. Pilängen ligger i ett utmärkt logistiskt läge med närhet till E18 och E20. Nära till busshållsplats.

Service

Närservice:

Enklare serviceutbud med lunchrestauranger finns i närområdet

Övrigt

Takhöjd:

7,5 m

Lokalen kan nås via:

2 markportar och 6 lasthus

Kontraktlängd:

Förhandlingsbart

Kontrakttyp:

Förstahandskontrakt

Tillträde:

2027-01-01.

Kontakta Annonsör

Susanne Bermark

Susanne Bermark