Dokument

Sva¨rdfisken 14 - planritning.pdf

Birger Svenssons väg 24

Butik/Industri/Kontor, 862 m2, Varberg

Hyra: Kontakta annonsören

Butiks- eller lagerlokal med tillhörande kontor centralt i Varberg!

Butikslokal med lager & kontor i Varberg - 862 kvm

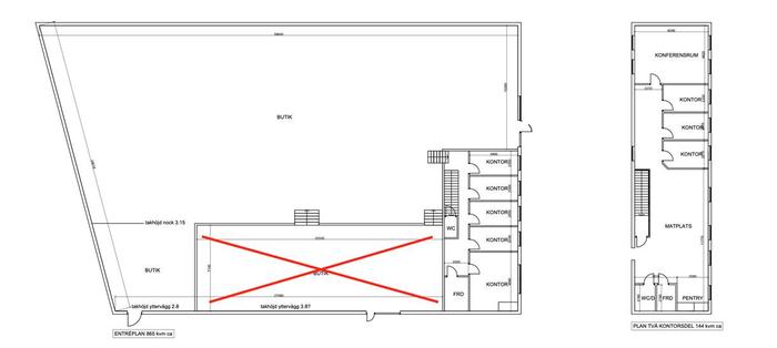
Lokal i ett centralt handelsområde med bra skyltläge och lastkaj för smidig in- och utlastning. Totalt 862 kvm, fördelat på 640 kvm butik/lager i markplan och 222 kvm kontor i två våningar. 

Om lokalen:
🏪 Butik/lager på 640 kvm - öppna ytor med möjlighet till anpassning
🏢 Kontor på 222 kvm i två plan
🚛 Lastkaj för enkel varuhanteringmed möjlighet låst innergård
📍 Skyltläge mot trafikerad väg
🅿️ Parkeringsplatser precis utanför

Lokalen kan anpassas efter behov. Här finns alla möjligheter och fastighetsägaren är beredd att göra en satsning tillsammsans med framtida hyresgäst.

Hör av dig för mer information eller visning.

Omgivning

Företag i närheten:

Ica Hajen, Förenade Bil, OKQ8, Intersport, Colorama, Kvik, Monark m.fl

Parkeringsmöjligheter/garage:

Finns platser både på innergården, samt kundparkering precis utanför lokalen.

Skyltläge:

Bra skyltläge. Eget hus, så alla möjligheter finns att sätta sin prägel

Planlösning

Planlösning:

Butik i markplan tillsammans med kontorsdel i två plan.

Kommunikationer

Centralt läge med gata som mynnar ut i centrala Varberg

Övrigt

Lokalen kan nås via:

Det finns mycket goda lastmöjligheter genom en lastkaj på baksidan via innergård

Kontraktlängd:

Långtidskontrakt

Kontrakttyp:

Förstahandskontrakt

Tillträde:

enligt ök.

Kontakta Annonsör

Joar Bjelkholm

Joar Bjelkholm