Dokument

Källarplan Ritning lokal 0901-0902 Djäknen.pdf

Linnégatan 6

Butik/Kontor/Övrigt, 39 - 89 m2, Växjö

Hyra: Kontakta annonsören

Nu finns möjlighet att hyra central lokal med gångavstånd till centralstationen!

På Linnégatan 6 hittar du denna lokal som finns tillgänglig för uthyrning.

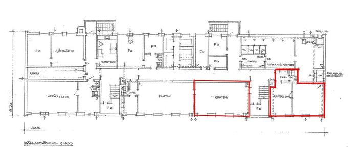
Lokalen är uppdelad på 2 objekt vilket möjliggör förhyrning av en yta om 39 kvadratmeter alternativt 89 kvadratmeter. 

Närhet till Växjö centrum med dess utbud av butiker, caféer och restauranger, både välkända favoriter och helt nya bekantskaper.

Omgivning

Företag i närheten:

Länsförsäkringar, Tandläkare Lars Wallin m.fl.

Parkeringsmöjligheter/garage:

Parkering finns att hyra.

Skyltläge:

Skyltläge ut mot vältrafikerade Linnégatan.

Vägbeskrivning:

Närhet till riksväg 25 och 27 vilket gör det lätt att ta dig snabbt till och från fastigheten.

Planlösning

Fastighetsbeteckning:

Djäknen 1

Byggår:

1954

Planlösning:

Öppen planlösning.

Energiklass:

E

Kommunikationer

Goda kommunikationer med Växjö central ett stenkast bort. Lokalen nås med enkelhet via bil, buss, cykel eller gång.

Övrigt

Övrigt:

Emilshus är ett fastighetsbolag med småländska rötter som bygger nära relationer med sina hyresgäster genom lokal närvaro och engagemang på orterna där bolaget finns. Verksamheten präglas av långsiktighet, stabila kassaflöden och lönsam tillväxt. Sedan 2018 har Emilshus etablerat sig som ett av de ledande fastighetsbolagen i Småland, Östergötland och Halland med cirka 7,3 miljarder kronor i fastighetsvärde per december 2023. Verksamheten bedrivs för närvarande i sju förvaltningsområden; Växjö, Jönköping, Östergötland, Kalmar, Halland, Vetlanda och Värnamo. Emilshus är noterat på Nasdaq Stockholm Mid Cap sedan 2022.

Uppvärmning:

Fjärrvärme

Ventilation:

FTX, F och självdrag

Kontraktlängd:

Förhandlingsbart

Kontrakttyp:

Förstahandskontrakt

Tillträde:

Enligt överenskommelse

Kontakta Annonsör

Stellan Petersson

Stellan Petersson