Malmövägen 12

Butik, 500 m2, Värnamo

Hyra: Kontakta annonsören

Butikslokal i markplan med utmärkt skyltläge, längs med Malmövägen - Kärnans köpcenter

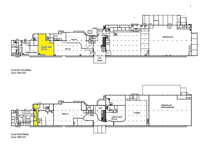
Butikslokal i hjärtat av Värnamo - 450 kvm i fastigheten Almen - Kärnans köpcenter

Nu har du chansen att etablera din verksamhet i en välkänd lokal mitt i Värnamo! Denna rymliga butikslokal på 450 kvm, belägen i den populära fastigheten Almen, erbjuder en perfekt möjlighet för både nya och etablerade företag. Lokalen har tidigare huserat en mini-livs, vilket gör den perfekt för dagligvaruhandel, men den är lika lämplig för andra typer av detaljhandel, café eller serviceverksamheter.

Fördelar med lokalen:


  • Centralt läge: Fastigheten Almen ligger på en attraktiv plats med hög kundtrafik och närhet till både boende och andra butiker, vilket ger utmärkta förutsättningar för att locka kunder.

  • Flexibel användning: Lokalen är anpassningsbar och kan enkelt formas för att möta just din verksamhets behov.

  • Goda parkeringsmöjligheter: Bekvämt för kunder och personal med bra tillgång till parkering i närheten.

  • Stark lokal kännedom: Med en historik som mini-livs är detta en lokal som redan är känd och uppskattad av Värnamos invånare.

Den här lokalen ger dig möjlighet att skapa något unikt och framgångsrikt i en vältrafikerad del av staden. Kontakta oss idag för en visning och låt oss hjälpa dig att förverkliga dina företagsdrömmar i fastigheten Almen!

Omgivning

Omgivning/natur:

Apladalen

Företag i närheten:

Här hittar du Hemmahallen, Stadium, Röda Korset, Djurens Värld mfl. I närområdet hittar du även Granngården, Ica Kvantum, Mio, Jysk, Rusta, Blomsterlandet, Kandyz.

Parkeringsmöjligheter/garage:

Gott om parkeringsmöjligheter på både fram och baksidan om fastigheten.

Skyltläge:

Utmärkt skyltläge utmed Malmövägen

Planlösning

Fastighetsbeteckning:

Almen 9

Kommunikationer

Hit kommer du enkelt med bil, buss och cykel.

Service

Närservice:

Café i byggnaden och gott om butiker, handel och restauranger i området.

Övrigt

Övrigt:

Emilshus erbjuder lokalt baserad förvaltning. Vi finns alltid nära tillhands när det behövs och delar gärna med oss av vårt breda kunnande inom lokal- och fastighetsfrågor. Vi har lokal närvaro och engagemang för din verksamhet. Tillsammans hittar vi kreativa lösningar för att göra din arbetsplats så bra som möjligt. Du som kund är alltid i vårt fokus.

Kontraktbeskr.:

Enligt överenskommelse

Tillträde:

Enligt överenskommelse

Kontakta Annonsör

Therese Jacobsson

Therese Jacobsson