Köpmansgatan 3

Butik/Övrigt, 120 m2, Värnamo

Hyra: Kontakta annonsören

Butikslokal i centrala Värnamo

Nu har du chansen att hyra en trevlig butikslokal i hjärtat av Värnamo. 


  • Fin öppen butiksyta med skyltfönster i gatuplan


  • Bra exponeringsläge med stora fönster mot trottoaren


  • Yteffektiv planlösning med möjlighet till anpassning


  • Centralt läge med god tillgänglighet för både gångtrafikanter, cyklister och bilburna kunder


Lokalen är flexibel och kan anpassas efter behov - här finns utrymme för både butik, ateljé, kontor eller annan verksamhet som vill dra nytta av synligheten i gatuplan.

Omgivning

Företag i närheten:

Lokalen är belägen i centrala Värnamo med närhet till hela dess utbud. I närheten ligger butiker som HM, Kjell & Company, Dressman, Hemköp, Specsavers, KappAhl, Trend House, MQ, Vero Moda samt restauranger som Harrys, Shady Burgers, Espresso House och Rosegarden.

Parkeringsmöjligheter/garage:

Goda parkeringsmöjligheter på fastigheten för besökare.

Skyltläge:

Utmärkt skyltläge i centrala Värnamo

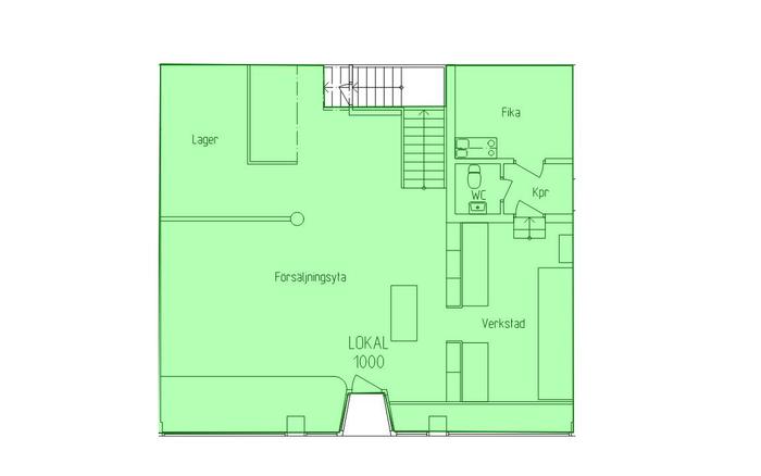
Planlösning

Fastighetsbeteckning:

Jungfrun 11

Planlösning:

Lokalen har en öppen planlösning väl anpassad för handel.

Kommunikationer

Goda kommunikationer för både bil och kollektivt resande. Fastigheten är belägen nära den stora genomfartsleden i Värnamo, länsväg 151 och gynnas även av närhet till motorväg E4. Det centrala läget innebär närhet till båda Värnamo station, mindre än 500 meter samt busshållplats precis intill torget.

Service

Närservice:

Med sitt läge i centrala Värnamo hittar du all tänkbar service

Övrigt

Övrigt:

Emilshus erbjuder lokalt baserad förvaltning. Vi finns alltid nära tillhands när det behövs och delar gärna med oss av vårt breda kunnande inom lokal- och fastighetsfrågor. Vi har lokal närvaro och engagemang för din verksamhet. Tillsammans hittar vi kreativa lösningar för att göra din arbetsplats så bra som möjligt. Du som kund är alltid i vårt fokus.

Uppvärmning:

Fjärrvärme

Ventilation:

FTX

Hiss:

Ja

Kontraktlängd:

Förhandlingsbart

Kontrakttyp:

Förstahandskontrakt

Tillträde:

Omgående. Enligt överenskommelse

Kontakta Annonsör

Carl-Johan Bergström

Carl-Johan Bergström