Dokument

Planritning Plan 2
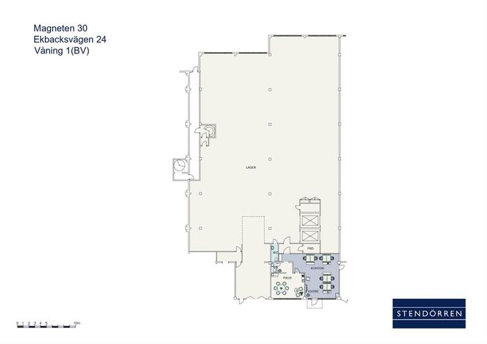
Planritning Markplan
3D Planritning hela lokalen

Ekbacksvägen 24, markplan

Butik/Industri/Kontor, 2957 m2, Stockholm, Ulvsunda Industriområde

Hyra: Kontakta annonsören

Möjligheternas lokal! Markport, 6,5 m takhöjd och möjlig kundmottagning på markplan
Unik lager/kontorslokal med markport och 6,5 m takhöjd mitt i Ulvsunda industriområde. Ca 1 000 kvm i markplan och ca 2 000 kvm på övre plan med god tillgänglighet via två stora lasthissar. Möjlighet finns att installera ytterligare markport. Bra möjlighet även för kundmottagning med egen besöksentré.

Här finns en fantastisk möjlighet att hyra en lokal med unika förutsättningar i populära Ulvsunda industriområde!

Lokalen erbjuder:
- Ca 1 000 kvm i markplan med hög takhöjd om 6,5 meter som skapar luftiga och öppna ytor, perfekt för lager, produktion eller annan verksamhet.
- Bärighet på 1 500 kg/kvm, vilket möjliggör förvaring och hantering av tungt material på båda våningsplanen.
- Goda lagermöjligheter, både på entréplan och övre plan, med öppna ytor som kan anpassas efter era behov.
- Effektiv logistik med 2 lasthissar, var och en med kapacitet för 2000 kg, samt en 3,6 meter bred port med fri höjd på 3,9 meter, vilket underlättar smidig in- och urlastning. Det är även möjligt att köra in bil direkt i lokalen.
- Möjlighet att installera ytterligare en markport.
- Kompletta personalutrymmen med två rymliga, separata omklädningsrum utrustade med flertalet duschar och WC.
- Ett stort och trevligt matrum samt kontor och konferensrum som ger utrymme för både arbete och möten i en bekväm miljö.
- Strategiskt läge i Ulvsunda industriområde, med snabb tillgång till större vägar och kollektivtrafik, vilket ger utmärkt logistik för både leveranser och personal.
- Parkering direkt vid fastigheten, vilket ger extra bekvämlighet för både anställda och besökare.
- Möjlig kundmottagning med egen entré.

Denna lokal passar perfekt för företag som söker en funktionell och välutrustad yta med bra logistiskt läge. Missa inte denna möjlighet att etablera din verksamhet i en modern och lättillgänglig lokal!

Kontakta oss idag för visning och mer information.

Omgivning

Omgivning/natur:

Fastighet belägen centralt i Ulvsunda industriområde. Parkering finns i anslutning till fastigheten.

Kommunikationer

Oavsett kommunikationssätt är det enkelt och smidigt att ta sig till fastigheten. Perfekt läge med närhet till Ulvsundavägen, E18 och E4 samt goda busskommunikationer med ca 5 min till Brommaplan.

Busslinjerna 155, 112 samt 156 trafikerar området. Tvärbanan finns inom gångavstånd och trafikerar sträckan Solna - Alvik. Närmsta hållplats är Ulvsunda Norra som ligger en kortare promenad från fastigheten och tar dig till Sundbyberg C eller Alvik på endast några minuter. I Sundbyberg finns ett flertal busslinjer, tunnelbanans blå linje samt pendeltåg. I Alvik finns busslinjer, tvärbana samt tunnelbanans gröna linje.

Service

Närservice:

Bromma Blocks med ca 80 butiker och ett flertal restauranger och caféer ligger belägen ca 15 minuter promenad bort alternativt ca 3 minuter med buss. Ett flertal restauranger ligger inom gångavstånd.

Övrigt

Tillträde:

Enligt överenskommelse

Kontakta Annonsör

Maria Björn

Maria Björn