Storgatan 15

Butik, 700 - 1400 m2, Södertälje, Centrum

Hyra: 0 kr/kvm/år

Butikslokal med centralt läge och attraktiva aktörer som grannar

Välkomna till en attraktiv lokal i Södertälje centrum tillgänglig för uthyrning, strategiskt belägna med god exponering i Luna Gallerian med utgång mot Storgatans shoppingstråk.

Lokalen är granne med välbesökta aktörer som Systembolaget, Apoteket och Din Sko. I sin omgivning finns ett brett utbud av service, handel och restauranger.

För mer information eller för att boka en visning, vänligen kontakta oss!

Omgivning

Fastigheten är beläget mitt i centrala Södertälje, vid gågatan Storgatan som är centrumets knytpunkt. Södertälje centrum är en livfull plats där stadens historiska arv möter modern dynamik. Med sina pittoreska gator och inbjudande torg skapar centrum en unik atmosfär av både småstadens mysighet och storstadens puls. Här hittar du ett brett utbud av butiker, caféer och restauranger som bjuder på både internationella smaker och lokala delikatesser. Det är en plats där kultur och kreativitet flödar, med konstutställningar, teaterföreställningar och spännande evenemang som livar upp gatorna året runt. Med den natursköna omgivningen, där Mälarens glittrande vatten bara ligger ett stenkast bort, blir Södertälje centrum en perfekt blandning av puls och ro, där alla kan hitta något som passar deras smak.

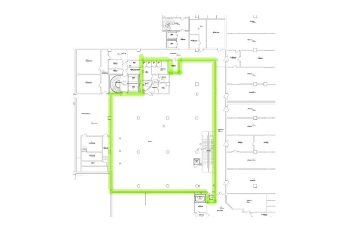
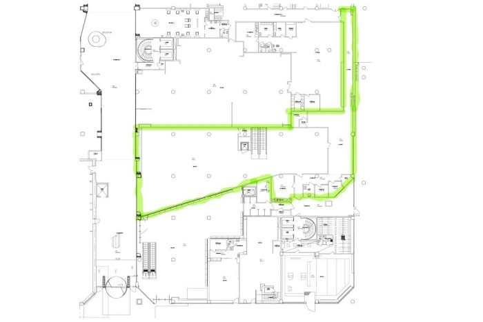
Planlösning

Butikslokal i två plan med rulltrappa som binder ihop planen.

Kommunikationer

Bussterminalen ligger i nära anslutning och erbjuder flera busslinjer för enkel resa inom kommunen och till närliggande områden. Dessutom når man Södertälje centralstation med en kort promenad, där pendeltåg förbinder staden med Stockholm och andra destinationer i regionen.

Service

Bussterminalen ligger i nära anslutning och erbjuder flera busslinjer för enkel resa inom kommunen och till närliggande områden. Dessutom når man Södertälje centralstation med en kort promenad, där pendeltåg förbinder staden med Stockholm och andra destinationer i regionen.

Kontakta Annonsör

Cecilia Cao

Cecilia Cao