Forskaregatan 17

Butik/Industri/Lager, 673 m2, Södertälje

Hyra: Kontakta annonsören

Perfekt lokal för bilhandel eller fordonsrelaterad verksamhet

Beskrivning

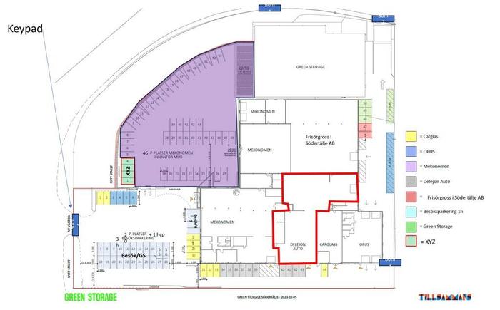
Nu finns chansen att hyra enljus och representativ lokal om 673 kvmForskaregatan 17, medfantastisk exponeringmot Ängsgatan - mittemot Max Hamburgare och med grannar somVolkswagen, Skoda, Cupra, AudiochGreen Storage.

Lokalen är belägen i en fastighet därMekonomen, Opus Bilprovning och Carglassredan finns etablerade - ett naturligt kluster förbilhandel, service eller annan fordonsrelaterad verksamhet.

  Om lokalen


  • Totalyta:673 kvm

  • Skyltfönsterut mot trafikerad gata - optimal exponering

  • Kundentréfrån framsidan,port med oljeavskiljarepå baksidan

  • Kontorsdel,HWC,LED-belysningocheffektiv ventilation

  • Funktionell planlösningmed god takhöjd - perfekt för visning, verkstad eller lager

  Läget

Lokalen ligger strategiskt placerad i ett väletablerat handels- och fordonsområde inorra Södertälje.

Smidig anslutning till motorvägar och genomfartsleder

Maximal synlighet från Ängsgatan med stora flöden av både biltrafik och kunder

 

Den perfekta lokalen för dig som söker en synlig, funktionell och attraktiv adress inom fordonsbranschen.

Kontakta oss redan idag för mer information och visning!

LOCUS ADVICE

Locus Advice är ett fastighetskonsultbolag med fokus på kommersiella fastigheter och lokaler.
Vi arbetar med


  • Lokaluthyrning

  • Lokalöverlåtelser 

  • Fastighetsöverlåtelse

  • Transaktionsrådgivning

  • Värdering

  • Projektledning

  • Vi representerar även hyresgäster som vill ha hjälp med sitt lokalsökande.


Genom etablerade samarbeten med både stora och små fastighetsägare har vi tillgång till ett stort utbud av lokaler utöver vad vi kan marknadsföra i vår egen regi. Via dessa samarbeten kan vi med stor sannolikhet hjälpa er hitta den lokal ni söker efter.

Kontakta Annonsör

Christer Sagheim

Christer Sagheim