Dokument

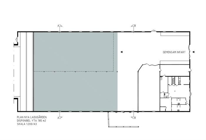
Ritning Ladugården
Exempelritning kontor

Christineholm

Butik/Övrigt, 400 - 927 m2, Nyköping

Hyra: Kontakta annonsören

Praktiska och unika lokaler uthyres strax utanför Nyköping
Christineholm familjegård är belägen i en harmonisk miljö på landsbygden. I denna sörmländska miljö är man omgiven av skog och vattendrag samtidigt som man får bli del av ett växande kluster för innovationsdrivna företag. Gården ligger i direkt anslutning till riksväg 53 vilket gör att man med enkelhet kan ta sig till Nyköping och E4:an som endast ligger sex kilometer bort.

Lokalerna är belägna i en modern ladugård som byggdes på 80-talet och omfattar totalt 800kvm produktionsyta som kan delas upp i två lika stora sektioner. Dessa ytor nås med enkelhet via en stor och modern port som förenklar all form av logistik. Lokalerna passar utmärkt för företag inom produktion som kräver stora öppna ytor och en generös takhöjd motsvarande 8 meter. Anpassningar som är specifika för er verksamhet kan genomföras i samråd med fastighetsägaren.

Vid behov av kontorsytor finns det möjlighet att hyra ett nyrenoverat och modernt kontor med en area motsvarande 127kvm en trappa upp i ladugården, se ritning för potentiell planlösning.

Familjegården Christineholm har i över 100 år varit en plats för företagsamhet och nu påbörjas den största omställningen på 20 år genom att utveckla ett företagskluster där innovationsdrivna och dynamiska bolag trivs och växer. Vi söker därför företag med karaktär som gärna bedriver någon form av livsmedelstillverkning eller annan enklare produktion. Stämmer denna beskrivning in på erat företag? Missa då inte möjligheten att bli en del av denna kreativa miljö.

Tillträde sker enligt överenskommelse, kontakta oss gärna för en visning!

Omgivning

Omgivning/natur:

Omgivningen och naturen kring Christineholm är fantastisk. 300 meter till Nyköpingsån och gården ligger i kulturhistoriskt viktig miljö och omgivning.

Parkeringsmöjligheter/garage:

Goda parkeringsmöjligheter intill byggnaden.

Planlösning

Byggår:

1980

Våningsplan:

1

Kommunikationer

Busslinje ligger ca 200 meter från fastigheten. Vidare finns goda tågförbindelser via Nyköping. Fastigheten ligger endast 4km från Skavsta flygplats.

Övrigt

Tillträde:

Enligt överenskommelse

Kontakta Annonsör

Aram Kevorkov

Aram Kevorkov