Dokument

Mileway_Krukskärvan_butik_ritning.pdf

Stenyxegatan 34

Butik/Kontor/Lager, 2894 m2, Malmö, Fosie

Hyra: Kontakta annonsören

Unik möjlighet att skapa en skräddarsydd butikslokal på attraktivt handelsläge i Fosie

Nu har du chansen att vara med och forma en butikslokal helt efter dina önskemål!
I en planerad ombyggnation skapas en modern och flexibel butiks- eller lagerlokal om totalt2 894 kvm, perfekt för dig som vill ha en anpassad lösning för din verksamhet.

Skräddarsydd butiksyta med optimala förutsättningar:


  • Öppen butiksplanlösning med generös takhöjd om 6 meter.

  • Stora skyltfönster och ljus entrésom skapar en inbjudande och attraktiv butiksmiljö.

  • Utmärkt skyltläge mot Stenyxegatan, vilket ger hög synlighet och exponering för din verksamhet.

  • Tillhörande kontorsdel med egen ingång, perfekt för administration och personalutrymmen.

  • Markport för smidig in- och utlastning, med möjlighet att anpassa och installera fler vid behov.

  • Fullt utrustade personalutrymmenmed pausyta, kök/pentry, omklädningsrum och WC.

Goda logistik- och parkeringsmöjligheter:


  • 7 000 kvm uppställningsyta- idealiskt för lager, varuhantering eller större fordon.

  • Stor parkeringi direkt anslutning till lokalen samt möjlighet tillelbilsladdning.

  • Inhägnat områdesom erbjuder trygghet och säkerhet.

Perfekt läge med närhet till stora trafikleder:

Fosie är en av Malmös mest attraktiva företags- och handelsområden, strategiskt placerat vidE6, E65 och Inre Ringvägenmed snabb access till både centrala Malmö och övriga regionen. I närheten finnsJägersro Centermed ett brett serviceutbud av butiker och restauranger. Dessutom finns godakollektivtrafikförbindelsermed buss till centrala Malmö.

💡Ta chansen att skapa en lokal helt efter din verksamhets behov!
Välkommen att kontakta oss för mer information och en visning.

Omgivning

Företag i närheten:

EKO, Scanfil, ABB, Byggmax, Ahlsell, ZooGiganten och Bilgalaxen

Parkeringsmöjligheter/garage:

Gott om parkeringsplatser på fastigheten (fri parkering), elbilsplatser

Skyltläge:

Bra skyltläge mot Stenyxegatan

Vägbeskrivning:

Direkt anslutning till E6, E65 och Inre Ringvägen

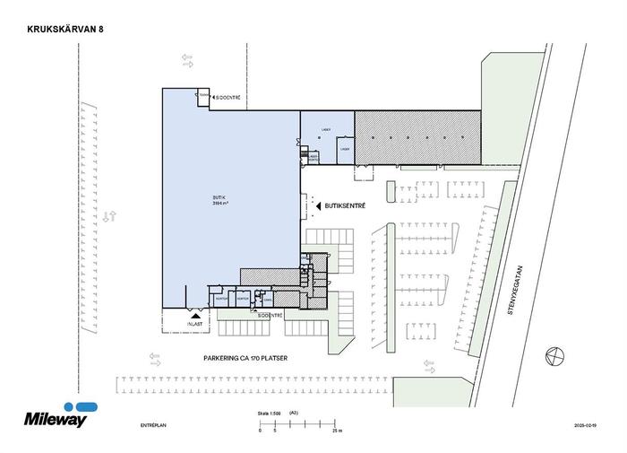
Planlösning

Fastighetsbeteckning:

Krukskärvan 8

Byggår:

1973

Våningsplan:

1 av 2

Planlösning:

Se planritning bland bilder eller ladda ned PDF.

Kommunikationer

Goda kollektivtrafikförbindelser med buss till centrala Malmö

Service

Närservice:

Jägerso Center finns inom nära räckhåll med stort serviceutbud av butiker och restauranger

Övrigt

Takhöjd:

6 m

Lokalen kan nås via:

En markport, möjligt att lägga till fler

Hiss:

Ja

Kontraktlängd:

Förhandlingsbart

Kontrakttyp:

Förstahandskontrakt

Tillträde:

Enligt överenskommelse

Kontakta Annonsör

Ida Friggerdal

Ida Friggerdal