Propellergatan 7

Butik, 90 m2, Malmö, Västra Hamnen

Hyra: Kontakta annonsören

Exklusiv butiks/frisör-lokal vid entrén till Sundspromenaden i Västra Hamnen
Precis där Sundspromenaden startar, på utmärkt hörnläge, ligger denna ljusa och trevliga lokal om ca 90 kvm. Lokalen är anpassad för frisörverksamhet men har tidigare även fungerat som showroom och modebutik. Vi söker en stabil hyresgäst med god ekonomi och en passande affärsidé. I grannlokalerna huserar modebutiken Ilse Jacobsen samt skönhetskliniken HR-kliniken. Utmärkta parkeringsmöjligheter för kunder precis framför lokalen. Lokalen är utrustad med säkerhetsjalusier.

Café och restaurang är tyvärr inte möjligt.

Tillträde 1 april 2026.

OBS! Vi ber er respektera nuvarande verksamhet i lokalen. Samtliga visningar ska bokas i förväg och all kontakt ska gå via Sundsstaden AB.

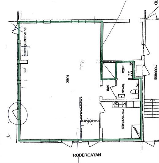
Planlösning

Fastighetsbeteckning:

Propellern 3

Service

Närservice:

All tänkbar service finns i närheten

Kontakta Annonsör

Nils Holmquist

Nils Holmquist