Du kan se dina sparade lokaler genom att klicka på "Sparade lokaler" i menyn högst upp.
Östra Förstadsgatan 44
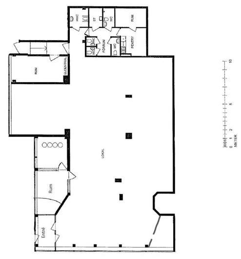
Butik,
446 m2,
Malmö, Centrum
Hyra: Kontakta annonsören
Lokal med god exponering i centrala Malmö!
Lokal med god exponering i centrala Malmö!
Lokalen är placerad på hörnet i fastigheten och i korsningen Östra Förstadsgatan/Drottninggatan. Lokalen är i fint skick och utmärkt för den som vill synas utåt med stora skyltfönster i ett område med hög aktivitet och rörelse.
För besökande kunder som åker kollektivt är det lättillgängligt då en av knutpunkterna för kollektivtrafiken i Malmö är på Värnhemstorget med knappa fem minuters promenad från lokalen. För kunder som kör bil är parkeringsmöjligheterna goda precis utanför lokalen eller i parkeringshuset hos Entré.
Välkomna att lämna ert intresse till oss!
FASTIGHET
Fastigheten Pontus ligger alldeles vid Malmös norra infart mot centrum, där Drottninggatan tar sin början.
I direkt anslutning till fastigheten finns bland annat Entré Malmö och Värnhemstorget. Huset som sträcker sig över ett helt kvarter har butikslokaler i gatuplanet - idag finns butiker, gym och flera restauranger - på första planet ligger genomgående kontor, medan övriga plan består av bostäder. Den upphöjda innergården är en grön oas byggd på taket till garaget.
ÖVRIGT
Yta lokal: 446 kvm
Område: Värnhem
Parkering: Möjlighet att hyra i garage
Avstånd Malmö C: 1400 meter
Skyltmöjligheter: Fasadskyltning
Byggnadsår: 1975
Fastighetstyp: Blandfastighet med butikslokaler, kontor samt bostäder
KOMMUNIKATION
Härifrån tar du dig direkt ut på motorvägen eller ringvägen och kortar därför ner restiden rejält för bilpendlarna. På bara ett par minuters gångavstånd ligger Värnhemstorget, som är ett nav för kollektivtrafiken med ett stort urval av stads- och länsbussar. Till Malmö Central promenerar du på
ca 15 minuter