Norregatan 1

Butik, 85 m2, Malmö, Centrum

Hyra: Kontakta annonsören

Butikslokal vid Drottningtorget
Välkommen till en butikslokal på Norregatan 1! Lokalen erbjuder en attraktiv butiksdel med bra exponeringsmöjligheter i direkt anslutning till Drottningtorget. Här finns även en generös lageryta i källarplan som ger goda förutsättningar för effektiv logistik.

Välkommen att kontakta oss vid intresse och berätta mer om din verksamhet eller vision. Skicka in en ifylld ansökningsblankett så hör vi av oss!
Lokalen är anpassad för butik och lämpar sig inte för verksamheter inom restaurang, livsmedel, frisör, skönhet, tatuering eller liknande.

Fasadbilderna är redigerade i illustrativt syfte.

Omgivning

Omgivning/natur:

Gamla Staden är området som ligger mellan Kungsparken och Drottningtorget, från de charmiga kullerstensgatorna på Väster till det pampiga Stortorget och Caroli.

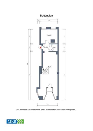
Planlösning

Planlösning:

Butikslokalen består av två rum, samt wc/toalett på entréplan. I källarplanet finns ett rymligt lagerutrymme som kompletterar lokalen på ett praktiskt sätt.

Kommunikationer

Norregatan 1 har ett strategiskt läge med god tillgång till kollektivtrafik. På några minuters promenad når du Malmö Centralstation och i närområdet finns även ett flertal busslinjer. Det ger en smidig tillgång till stadens olika delar samt kringliggande orter. För cyklister finns det bra cykelvägar, vilket gör det enkelt att ta sig till och från lokalen på ett hållbart sätt.

Övrigt

Övrigt:

Lokal med entré direkt från gatuplan.

Tillträde:

Enligt överenskommelse

Kontakta Annonsör

Lokalgruppen

Lokalgruppen