Kronborgsvägen 7

Butik, 73 m2, Malmö, Västra innerstaden

Hyra: Kontakta annonsören

Fin butikslokal, perfekt för showroom!
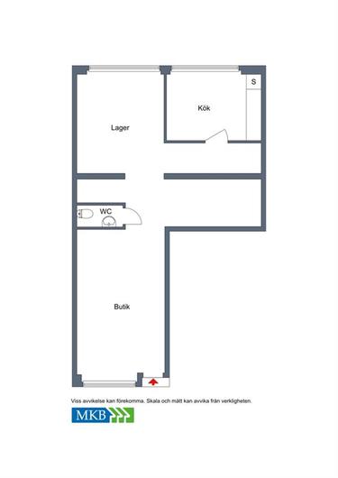
Nu erbjuder vi en fin butikslokal om 73 kvm, belägen på vältrafikerade gata. Lokalen erbjuder en stor butiksyta med skyltfönster och exponeringsmöjlighet utmed gatan. I den bakre delen av lokalen finns ett praktiskt lagerutrymme, WC och pentry för bekvämlighet. För den som kör bil finns även möjlighet till parkering direkt utanför lokalen. Denna lokal är idealisk som showroom, där du kan skapa en inbjudande och professionell miljö för kunder och besökare.

Välkomna att kontakta oss för mer information! Lämpar sig ej för livsmedelsbutik eller kiosk.

Omgivning

Omgivning/natur:

Liksom övriga områden i västra innerstan består Fågelbacken av lugna smågator och återvändsgrändar som omgärdas av stora, trafikerade vägar. I området finns flera mindre butiker, serviceaffärer samt ett köpcentrum vid Kronprinsen. Det är lätt att hitta ett favoritkafé eller en trevlig krog i närheten.
Våra hus är tidstypiska byggnader från mitten av förra seklet. Pildammsparken och Slottsparken i närheten har fina promenadstigar och motionsspår. Det är även nära till Ribersborg och Öresundsparken. Simhallen Aq-va-kul, fotbollsplaner och Hästhagens idrottsplats ger goda sportmöjligheter. Gymnasieskolorna Borgarskolan och S:t Petriskolan ligger alldeles i närheten. Från Kronprinsen går buss 1 och 4, medan buss 5 stannar på Köpenhamnsvägen.

Parkeringsmöjligheter/garage:

korttidsparkering finns på gatan utanför butiken.

Planlösning

Fastighetsbeteckning:

Örsholm 4

Byggår:

1956

Kommunikationer

Med tre bussar är det lätt att åka till hela Malmö från Fågelbacken. Buss 1 och 4 stannar vid Kronprinsen, medan buss 5 går från Köpenhamnsvägen. Det centrala läget gör att Fågelbacken är ett utmärkt område att cykla till och från. Många cykelbanor går genom området, så du slipper de stora bilvägarna. Många väljer att promenera den korta sträckan till och från innerstan, exempelvis genom Slotts- och Kungsparkerna eller via Davidshall.

Övrigt

Tillträde:

Enligt överenskommelse

Kontakta Annonsör

Lokalgruppen

Lokalgruppen