Finlandsgatan 20E

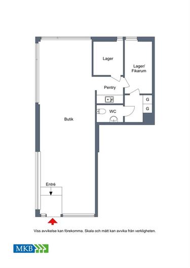
Butik, 63 m2, Malmö, Fosie

Hyra: Kontakta annonsören

Butikslokal nära Mobilia köpcentrum i Malmö
Nu finns en butikslokal till uthyrning nära mobilia köpcentrum. Lokalen erbjuder en öppen butiksyta med goda möjligheter att utforma lokalen efter egna behov och önskemål.

Här finns pentry, lagerutrymme samt wc. Parkering finns i närområdet, vilket gör det enkelt för både kunder och personal.

Detta är en perfekt möjlighet för den som söker en prisvärd lokal att utveckla och anpassa efter sina egna behov.

Kontakta oss för mer information!

Observera att lokalen inte är lämplig för restaurang eller livsmedel.

Omgivning

Omgivning/natur:

I Heleneholm finns det gott om service, med allt från matbutiker till små servicebutiker och specialaffärer. Bensinmack, pizzeria och andra restauranger hör också till ut-budet. Köpcentret Mobilia, fem minuters promenad härifrån, erbjuder all tänkbar service. I närheten ligger en större idrottsplats för fotboll och friidrott, samt den gröna Heleneholmsparken.

Planlösning

Fastighetsbeteckning:

Jämtland 9

Byggår:

1955

Kommunikationer

Buss 2, som kör mellan Västra Hamnen och Lindängen, stannar på Eriksfältsgatan i närheten av våra fastigheter. Det går utmärkt att cykla till de flesta platser i resten av stan, tack vare korta avstånd och välplanerade cykelbanor. Pildammsparken, Södervärn, Triangeln och Möllevången ligger på gång-/ eller cykelavstånd. Med bil är det enkelt att komma till Inre Ringvägen genom att köra Trelleborgsvägen söderut.

Övrigt

Övrigt:

Lokal med entré direkt från gatuplan.

Kontakta Annonsör

Lokalgruppen

Lokalgruppen