Kiliansgatan 12
Centrum, Lund, 103 m2
Kvalitativ källarlokal på en av stadens mest trafikerade stråk mitt i centrum. På lätt tillgänglig gata precis intill Mårtenstorget ligger...
Dokument
Ritning - Plan 0 - kvalitativa källarlokaler med rikligt ljusinsläpp, förråd, garageButik/Kontor/Lager, 20 - 2150 m2, Lund, Centrum
Hyra: Lokalerna kostar mellan 1800 - 3000 Sek/kvm beroende på yta, byggnationsår och funktion.
Terassen är vår modernaste fastighet i centrala Lund och är en nybyggnation som utökar anrika Gasverket 6 med ytterligare 1250 kvm moderna lokaler. Fastigheten håller hög miljöstandard med låg energiförbrukning. Kvalitativa materialval både exteriört och interiört samt modernaste teknik i husets alla faciliteter både i de gamla och de nybyggda delarna av fastigheten.
Gasverket 6 ingår i Lunds bevaringsprogram och har brukats som kontorslokal i över ett sekel. Fastigheten har varsamt renoverats i omgångar och senast år 2020 och moderniserats till dagens högsta standard. Optisk fiber för datakommunikation, modern ventilation med komfortkyla och handikappsanpassad hiss är några nämnbara detaljer. Lokalen har högt i tak och stora fönsterpartier som släpper in rikligt med dagsljus. För den snabbväxande verksamheten finns möjlighet till expansion både på samma våningsplan, men också i samma fastighet med ytor upp till 3000 Kvm. Fastighetens planlösning och konstruktion tillåter stor flexbilitet ifråga om anpassningar till hyresgästens verksamhet. Öster om Fastigheten ligger Lunds främsta handelsstråk med Lilla Fiskaregatan och Klostergatan. På promenadavstånd strax söder om Fastigheten finns Lunds badhus samt Lunds stadspark. Avståndet till Stortorget och Clemenstorget är ca 200 meter samt till Mårtenstorget ca 300 meter.
Stadsparken ligger inom 3 minuters promenadavstånd.
Parkeringsmöjligheter/garage:Möjlighet att hyra p-platser till besökande precis utanför huset, garage platser i källarvåning samt garageplatser i varm garage inom 1 minuts gångavstånd till förmånliga priser.
Skyltläge:Fastigheten har några fasader som tillhör stadens mest exponerade. Utrymme för skyltning finns tillgängligt. Skyltlov måste sökas av hyresgäst.
Gasverket 6
Byggår:1931
Renoveringsår:2023
Planlösning:Planlösningen erbjuder möjlighet till öppet landskap, stora grupprum, dubbelrum samt enskilda rum med stora anpassningsmöjligheter.
Fastigheten har god tillgänglighet till allmänna kommunikationer, Lunds järnvägsstation ligger ca 100 meter från Fastigheten. Hållplats för stadsbuss finns på Trollebergsvägen samt vid jänrvägsstationen. Tillgängligheten med bil är mycket god med bra parkeringsmöjligheter i kvarteret samt vid Västra stationstorget.
Varierande utbud av restauranger, pubar, cafeer samt all närservice centrum har att erbjuda
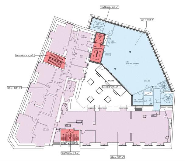
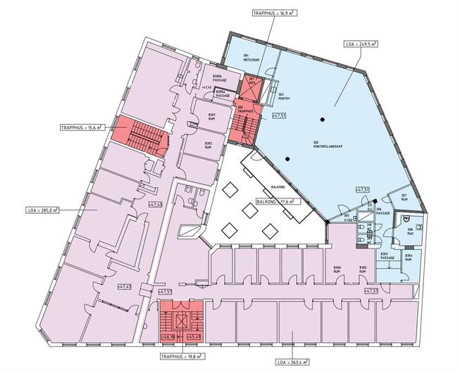
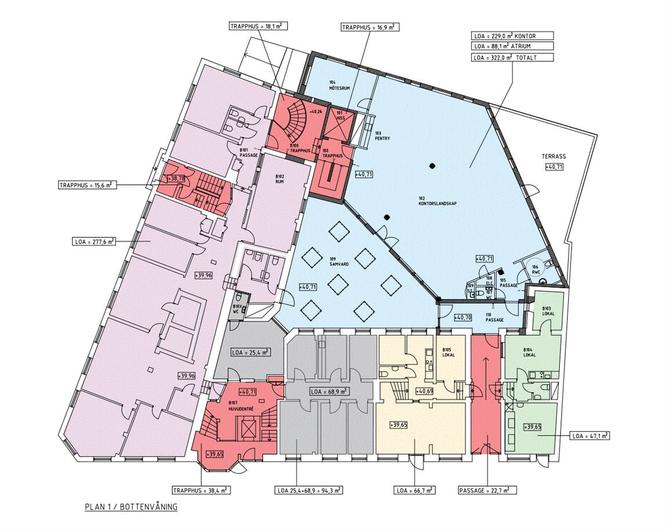
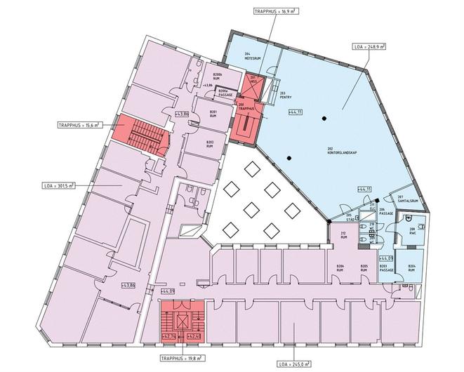
Lokalerna är fördelade över 6 våningar med ytor på minst 80 och max 800 kvm per våningsplan. Längst ner finns källarlokaler som lämpar sig för tyst verkstad eller enklare kontor med ytor mellan 80-120 kvm. Längst ner finns även förråd, teknikutrymmen och garage. Våning 1 har tillgång till ett stort fint atrium/samlingssal på ca 80 kvm och en stor trevlig uteterass där personalen kan njuta fikat. De högre våningarna har en härlig utsikt mot klosterkyrkan och tågstationen i norr och mot stadsparken i söder. Våning 2-4 har stor balkong med utsikt mot innergården. Balkongen på våning 5 har utsikt norrut mot stadens centrum. Huset har även en terass högst upp med utsikt över hela centrum som är tillgänglig för alla hyresgäster i huset för allt från kundtillställningar till vardagens "lunch with a view". Lokalerna är utrustade med handikappsvänlig hiss, senaste teknik för datakommunikation, passagesystem, intercom för mottagning av besök, pentry med kokvrå och kylskåp, handikappsvänliga toaletter, förrådsutrymmen samt städhörna. Möjlighet att hyra extra förrådsutrymmen i källaren samt garage-platser i anslutning till huset finns.
Uppvärmning:Fjärrvärme
Lokalen kan nås via:Fastigheten har handikappsanpassad ramp på framsidan och lätt tillgängligt för tyngre fordon på baksidan via Gasverksgatan.
Ventilation:Komfortkyla
Hiss:Ja
Kontraktlängd:Förhandlingsbart
Kontrakttyp:Förstahandskontrakt
Tillträde:Enligt överenskommelse
Hyresinformation:Lokalerna kostar mellan 1800 - 3000 Sek/kvm beroende på yta, byggnationsår och funktion.