Örebrovägen 25

Butik/Lager, 400 m2, Karlskoga

Hyra: 500 kr/m²/år. Avser utgångshyra och kan komma att justeras beroende på anpassningar av lokalen.

Stor källarlokal med ingång utifrån belägen i centralt läge i Karlskoga och precis bredvid E18.

Stor källarlokal med ingång utifrån belägen i centralt läge i Karlskoga och precis bredvid E18.

Lokalen är källarvåningen under godisbutiken Kandyz AB på Örebrovägen 25.

Anpassningsbar och avdelningsbar för att passa olika verksamheter.
Passande verksamheter kan vara lager och enklare butik exempelvis loppis.

Kök och WC finns i lokalen.

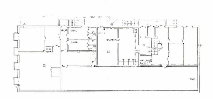
Planlösning

Fastighetsbeteckning:

Bälgen 2

Planlösning:

Mörk LOA fördelat både på öppnare delar och och flertalet rum, både WC och kök finns.
Anpassningsbar för butik och lager.

Övrigt

Uppvärmning:

Fjärrvärme

Kontraktlängd:

Förhandlingsbart

Kontrakttyp:

Förstahandskontrakt

Tillträde:

Enligt överenskommelse

Utgångshyra kr/m2/år:

500

I hyran ingår:

Värme

Hyresinformation:

Avser utgångshyra och kan komma att justeras beroende på anpassningar av lokalen.

Kontakta Annonsör

Anna Stangvik

Anna Stangvik