Dokument

Planritning - Mileway - Backa 21-13 Göteborg.pdf
Backa 21-13_Exportgatan 17_540-1100 kvm_Brochure.pdf

Exportgatan 17

Butik/Industri/Kontor, 542 - 1100 m2, Göteborg, Backadal

Hyra: Kontakta annonsören

TradePoint 17 - Toppmoderna lokaler för lager, verkstad och B2B i Göteborgs mest eftertraktade lättindustriområde

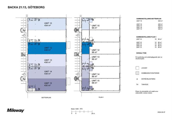
Nu har du möjlighet att hyranyproducerade och ytsmarta lagerlokaleri ett av Göteborgs mest eftertraktade lättindustriområden, direkt vid E6:an.Toppmoderna TradePoint 17erbjuder sex flexibla enheter om cirka540 kvm vardera. För större behov kan enheterna kombineras för att skapa sammanhängande ytor om upp till 1 100 kvm. Lokalerna lämpar sig utmärkt för exempelvis enklare handel, showroom, B2B, besiktning eller verkstad.

Lokalernas höjdpunkter:


  • Imponerande takhöjd:Upp till9,8 meter(8,2 meter till balk), vilket möjliggör effektiv användning av utrymmet.

  • Goda lastningsmöjligheter:Varje enhet är utrustad med enegen markportför smidig in- och utlastning.

  • Flexibel och ytsmart planlösning:Stora öppna lagerytor med möjlighet att anpassa efter verksamhetens behov.

  • Hög golvbärighet:Klarar upp till3 ton/kvm, perfekt för tung lagerhantering.

  • Tillhörande kontor:Varje enhet har96 kvm kontorsytapå ett entresolplan, idealiskt för kombinerade verksamheter.

  • Toppmodern byggnadmed miljöcertifiering och energibesparandeLED-belysning.

  • Säkerhet och tillgänglighet:Byggnaden är belägen inom ettinhägnat områdemedgoda parkeringsmöjligheterochtillgång till elbilsladdningför både personal och besökare.

Strategiskt läge i Backa:
Backa är ett av Göteborgs mest väletablerade lättindustriområden, känt för sin dynamiska mix av handel, logistik och tillverkning. Området ligger7 kilometer norr om centrala Göteborg, meddirektanslutning till E6och Marieholmsförbindelsen. Här finns närhet till både Stigs Center och Bäckebol köpcenter, som erbjuder ett brett serviceutbud med butiker och restauranger. Området har dessutom goda kollektivtrafikförbindelser med buss till centrala Göteborg.

Välkommen att kontakta oss för mer information eller för att boka en visning!

Omgivning

Omgivning/natur:

Backa är ett av Göteborgs mest etablerade lättindustriområde präglat av handel, logistik och tillverkning

Företag i närheten:

Beijer Byggmaterial, Ahlsell, Euromaster och Dagab

Parkeringsmöjligheter/garage:

Parkering i anslutning till byggnaden

Skyltläge:

Bra exponering av skyltläge mot Exportgatan och E6

Vägbeskrivning:

Direkt anslutning till E6

Planlösning

Fastighetsbeteckning:

Backa 21:13

Byggår:

2024

Våningsplan:

1

Planlösning:

Ladda ner planlösning som högupplöst PDF eller se bland bilder.

Kommunikationer

Goda kollektivtrafikförbindelser med buss till centrala Göteborg

Service

Närservice:

Närhet till levande handelsplats kring Stigs Center och Bäckebol Köpcenter med ett brett serviceutbud av butiker, gym och restauranger

Övrigt

Takhöjd:

8,2 m

Lokalen kan nås via:

Upp till 6 markportar (1 per enhet)

Hiss:

Ja

Miljöcertifiering:

BREEAM

Den här certifieringen är världens mest använda. Breeam används för befintliga och nybyggda kommersiella byggnader. 2013 kom en svensk version som utgår från svensk lagstiftning, svenska metoder och arbetssätt. Breeam är en heltäckande certifiering med många indikatorer. Här görs bedömningar inom projektledning, energianvändning, inomhusklimat, vattenhushållning, avfallshantering, markanvändning, påverkan på närmiljön, byggmaterial och föroreningar samt byggnadens läge i förhållande till allmänna kommunikationsmedel.

Källa

Kontraktlängd:

Förhandlingsbart

Kontrakttyp:

Förstahandskontrakt

Tillträde:

Omgående

Kontakta Annonsör

Paul Garces

Paul Garces