Backavägen 7

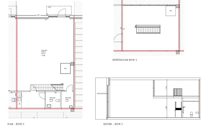
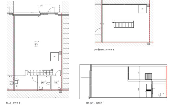
Butik, 130 m2, Göteborg, Norr

Är du på jakt efter den perfekta platsen för din verksamhet? Då har vi den idealiska lokalen för dig i det helt nya kvarteren som växer fram som framtidens Backaplan! Med en fantastisk placering intill den nya stora Coop-butiken och en charmig blomsterbutik som granne, har du möjlighet att bli en viktig del av detta nya handelsområde.

Omgivning

Varför Backaplan?

Backaplan är på väg att förvandlas till Göteborgs mest spännande stadsdel och handelsdestination. En stadsdel där bilen tar mindre plats, som lever under dygnets alla timmar och där kultur, handel, service och omsorg finns tillgängligt i det direkta närområdet. Här ska på sikt runt 20 000 människor leva, verka och bo.

Möjligheter att forma framtidens Backaplan:

Din verksamhet har chansen att vara med och forma Backaplan till en ännu mer levande och inspirerande plats. Vi tror att en caféverksamhet skulle passa perfekt här men välkomnar olika branscher och koncept och är öppna för att diskutera din vision och hur vi kan stödja din verksamhet i detta blomstrande område.

Så var med och skapa framtidens Backaplan!

Övrigt

Parkering

Nej

Skyltläge

Nej

Kontakta Annonsör

Christian Ulkner

Christian Ulkner