Dokument

DOC221024-20221024084154.pdf

Luddögatan 3

Kontor/Övrigt, 157 m2, Värnamo

Hyra: Kontakta annonsören

Kontorslokal i centrala Värnamo. Möjlighet att utforma sina egna lokaler.

Kontorslokal i centrala Värnamo med fint ljusinsläpp. Lokalen är belägen på plan två i byggnaden med delad entré. Lokalen har idag öppna ytor men går helt att anpassa efter en hyresgäst verksamhet och önskemål, här finns möjlighet att utforma sina egna lokaler. Idag finns kök och WC-grupp. 

Lokalen är belägen i centrala Värnamö,mellan Storgatan och Värnamo station. Flanaden gallerian och kringliggande bebyggelse erbjuder ett brett utbud av butiker, restauranger och service. 

Fastigheten nås enkelt via bil, buss eller tåg. Värnamo station är belägen mindre än 500 meter från gallerian som även erbjuder goda parkeringsmöjligheter för besökare.  

Omgivning

Företag i närheten:

Lokalen är belägen i centrala Värnamo med närhet till hela dess utbud. I närheten ligger butiker som HM, Kjell & Company, Dressman, Hemköp, Specsavers, KappAhl, Trend House, MQ, Vero Moda samt restauranger som Harrys, Shady Burgers, Espresso House och Rosegarden.

Parkeringsmöjligheter/garage:

Goda parkeringsmöjligheter på fastigheten för besökare.

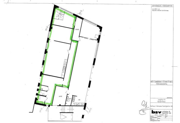
Planlösning

Fastighetsbeteckning:

Jungfrun 11

Våningsplan:

2 av 2

Planlösning:

Öppen kontorslokal med bra ljusinsläpp.

Energiklass:

Breeam In Use Certifierad

Kommunikationer

Goda kommunikationer för både bil och kollektivt resande. Fastigheten är belägen nära den stora genomfartsleden i Värnamo, länsväg 151 och gynnas även av närhet till motorväg E4. Det centrala läget innebär närhet till båda Värnamo station, mindre än 500 meter samt busshållplats precis intill torget.

Service

Närservice:

Det centrala läget skapar närhet till hela Värnamos utbud av restauranger, mataffärer, butiker och service.

Övrigt

Uppvärmning:

Fjärrvärme

Ventilation:

FTX

Hiss:

Ja

Kontraktlängd:

Förhandlingsbart

Kontrakttyp:

Förstahandskontrakt

Tillträde:

Omgående

Kontakta Annonsör

Carl-Johan Bergström

Carl-Johan Bergström