Residensgatan 18

Kontor/Kontorshotell/Övrigt, 553 m2, Vänersborg, Vänersborg

Hyra: 0 kr/kvm/år

Vacker fest- eller kontorslokal i centrala Vänersborg! Unikt tillfälle!

Stenvalvet erbjuder ett unikt tillfälle att hyra fest-, konferens- eller kontorslokal i centrala Vänersborg.

Letar ni efter en lokal som kombinerar historisk charm med en unik atmosfär?
Lagergrenska huset i centrala Vänersborg är en riktig pärla med sina vackra kakelugnar, eleganta takrosetter, stilfulla tapeter och genomgående plankgolv. Den imponerande takhöjden på cirka 3,5 meter ger rummen en luftig och rymlig känsla. Dessutom finns hiss i huset för enkel tillgång till alla våningsplan.

Lagergrenska huset, byggt i mitten av 1800-talet, är ett välbevarat exempel på ett högborgerligt bostadshus från denna tid. Huset fick sitt namn när Häradshövding Carl Erik Lagergren flyttade in i slutet av 1800-talet. Byggnaden är en del av kvarteret Poppeln 7 och är känd för sin klassicerande arkitektur och tidstypiska detaljer.

Denna lokal lämpar sig utmärkt som festlokal för bröllop och jubileum, konferenslokal för företagsevenemang och möten, café/restaurang med charm eller som kontor med karaktär.

Omgivningen erbjuder utmärkta parkeringsmöjligheter, vilket gör det enkelt för både anställda och besökare att ta sig till lokalen. Intill byggnaden finns ett eget parkeringsområde med både kort- och långtidsparkering, och på Vänersborgs torg finns ytterligare parkeringsmöjligheter.

Vi på Stenvalvet får ofta förfrågningar om att hyra ut lokalen för fester och kalas, men eftersom vi inte själva bedriver sådan verksamhet, ser vi detta som en fantastisk möjlighet för er som gör det. Vi är öppna för flexibla uthyrningsalternativ, inklusive omsättningshyra, för att bäst passa era specifika behov och förutsättningar.

I skrivande stund planeras renoveringar såsom nya entrédörrar, ommålning och uppfräschning av fasaden. Arbetet sker i nära samarbete med arkitekt för att bevara husets historiska charm. Taket är redan omsorgsfullt renoverat och utgör en fin grund för det fortsatta arbetet.

Varmt välkomna att kontakta oss för mer information!

Omgivning

Lagergrenska huset ligger i hjärtat av Vänersborg, en charmig stad vid Vänerns södra strand. Området erbjuder en härlig blandning av historiska byggnader och moderna bekvämligheter.

- Historiska byggnader: I området finns det flertalet historiska byggnader. Området har en rik historia som ger en unik karaktär till stadsbilden.

- Grönområden: För den som uppskattar naturen finns det flera parker och grönområden i närheten, perfekta för en avkopplande promenad eller en picknick.

- Service och bekvämligheter: I området kring Residensgatan finns ett brett utbud av restauranger, kaféer, butiker och andra bekvämligheter. Allt du behöver finns inom gångavstånd.

- Vänersborgs torg: Ett stenkast bort ligger Vänersborgs torg som erbjuder torghandel under helgerna, vilket ger en livlig och trevlig atmosfär med färska produkter och lokala varor.

- Kultur: Vänersborgs museum ligger också i närheten och erbjuder intressanta utställningar och aktiviteter för alla åldrar.

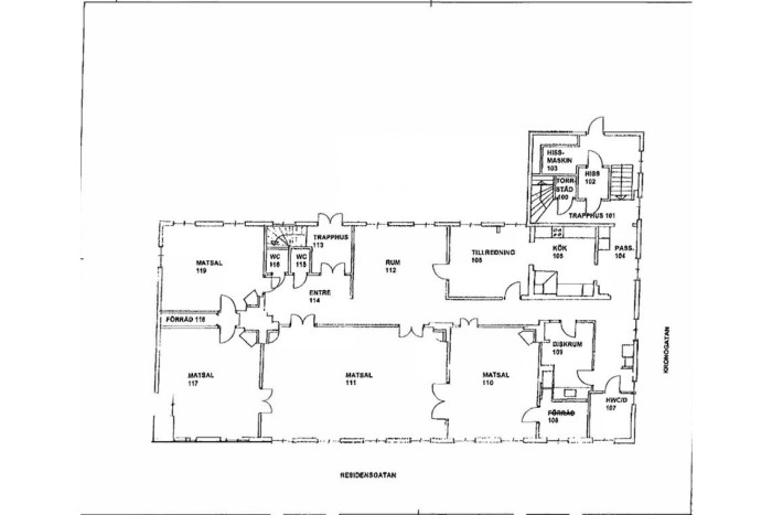
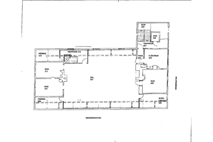
Planlösning

Bottenvåning:
- Flera rum i olika storlekar, inklusive en större sal som lämpar sig för måltider, konferenser eller möten.
- Kök (i visst behov av uppdatering).
- Toaletter.
- Förrådsytor.

Övervåning:
- Rum i varierande storlekar, med ett större rum idealiskt för festliga tillställningar.
- Förrådsytor.

Kommunikationer

- Buss: Flera busslinjer stannar i närheten, vilket gör det enkelt för både anställda och kunder att ta sig hit.

- Tåg: Vänersborgs centralstation ligger bara en kort promenad bort, vilket ger smidig tillgång till regionala och nationella tågförbindelser.

- Bil: För dig som kör bil finns det gott om parkeringsmöjligheter i området, samt enkel tillgång till de större vägarna E45 och väg 44.

- Egen parkering: Intill byggnaden finns ett eget parkeringsområde med både kort- och långtidsparkering, vilket gör det bekvämt för både anställda och besökare.

Service

- Buss: Flera busslinjer stannar i närheten, vilket gör det enkelt för både anställda och kunder att ta sig hit.

- Tåg: Vänersborgs centralstation ligger bara en kort promenad bort, vilket ger smidig tillgång till regionala och nationella tågförbindelser.

- Bil: För dig som kör bil finns det gott om parkeringsmöjligheter i området, samt enkel tillgång till de större vägarna E45 och väg 44.

- Egen parkering: Intill byggnaden finns ett eget parkeringsområde med både kort- och långtidsparkering, vilket gör det bekvämt för både anställda och besökare.

Kontakta Annonsör

Jan Persson

Jan Persson