Svederusgatan 1
Fyrislund, Uppsala, 600 m2
Ledig kontorslokal om 600 kvm med gott om parkeringsplatser Ledig kontorslokal om 600 kvm på plan två. Planlösningen består av...
Dokument
Årsta 64-2_Drawings-Site Plans..pdfKontor/Övrigt, 400 - 1200 m2, Uppsala, Fyrislund
Hyra: Kontakta annonsören
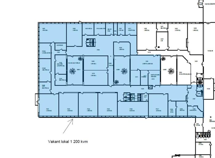
Här finns en fantastisk möjlighet att hyra en rymlig och välplanerad lokal om totalt 1 200 kvm, idealisk för yrkesutbildningar, kontor eller liknande verksamheter. Lokalen är uppdelad i flera rum om cirka 65 kvm vardera, som redan håller hög standard men kan anpassas efter dina specifika behov. Den kan delas upp flexibelt i olika delar eller hyras som en hel enhet. Utmärkt tillgång till en stor parkeringsyta för besökare precis intill byggnaden gör det bekvämt och lättillgängligt.
Lokalen kan även hyras som 400 respektive 800 kvm, beroende på dina behov.
Slavsta är ett snabbt växande bostadsområde i Årsta, beläget fyra kilometer söder om centrala Uppsala. Området har utvecklats från industriområde till attraktivt bostadsområde med både villor, radhus, bostadsrätter och hyresrätter. Det finns stora grönområden och ett brett serviceutbud av butiker och lunchrestauranger i närområdet kring Fyrislund och Boländerna. Fastigheten ligger i nära anslutning till väg 255 som ansluter till E4 och riksväg 55 på ett par minuter. Goda kollektivtrafikförbindelser med buss 6, 11 samt 804 till centrala Uppsala finns inom räckhåll och tar cirka 15 minuter.
Shurgard, Hööks, Mekonomen, Kandyz och IKEA
Parkeringsmöjligheter/garage:Stor parkeringsplats utanför lokalerna
Vägbeskrivning:Direkt anslutning till Tycho Hedéns väg som leder snabbt ut till E4
Årsta 64:2
Byggår:1980
Renoveringsår:2005
Våningsplan:1
Planlösning:Se planritning bland bilder/pdf.
Goda kollektivtrafikförbindelser med buss till centrala Uppsala och Stockholm med omnejd
Brett serviceutbud av butiker och lunchrestauranger i närområdet
Förhandlingsbart
Kontrakttyp:Förstahandskontrakt
Tillträde:Enligt överenskommelse