Dokument

Kungsängen 40_1 - Del av plan 1 & 2 - Illustrationsskiss - 251024

Hamnplan 9

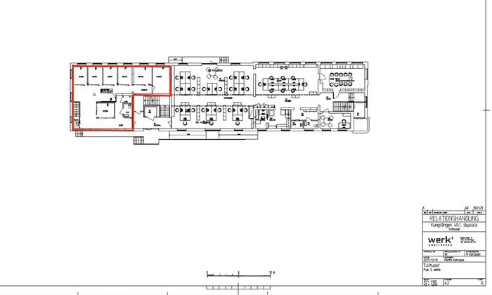
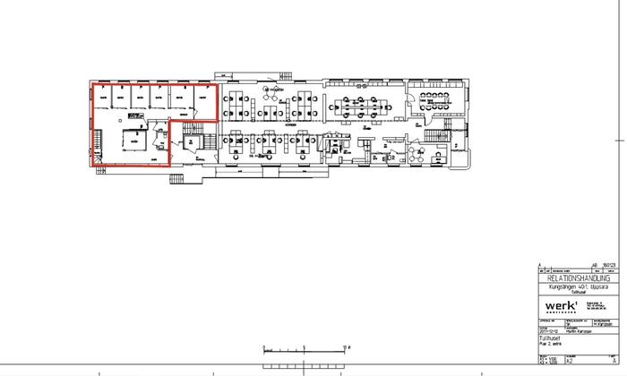
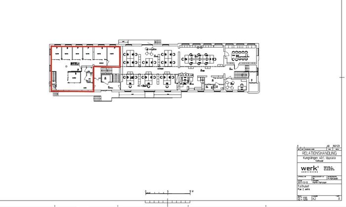
Övrigt, 228 m2, Uppsala

Ett unikt kontor med karaktär och centralt läge erbjuds nu i det anrika Tullhuset vid Hamnplan precis intill Fyrisåns vatten.
Lokalen sträcker sig över två plan och kombinerar tidstypiska detaljer med en modern standard. Ljusa ytskikt och en genomtänkt planlösning skapar en trivsam arbetsmiljö med både individuella kontorsrum och större utrymmen för samarbete.
Det attraktiva läget erbjuder närhet till både stadsparkens grönska och det levande kvarteret runt ån, där restauranger och caféer ligger precis utanför dörren.

Omgivning

Området kring Hamnplan erbjuder attraktiva promenadstråk längs Fyrisån, omgivna av restauranger, caféer och flera gångbroar som leder över till Uppsalas grönskande stadspark en inbjudande miljö med stora ytor för umgänge, avkoppling och rekreation. I direkt närhet ligger även nybyggda Studenternas, en modern arena som rymmer restaurang, café, gym och andra bekvämligheter.

Kommunikationer

På endast 10 minuters promenadavstånd ligger Resecentrum stadens centrala punkt för all kollektivtrafik, inklusive både tåg och bussar.

Övrigt

FastPartner arbetar långsiktigt med att äga och förvalta fastigheter i Sveriges mest expansiva regioner. Vi är sedan 1994 noterade på Nasdaqs MidCap-lista och förvaltar idag mer än 1,2 miljoner kvadratmeter lokalyta. Vår ambition är att vara en smidig och effektiv partner för företag som vill utveckla sin verksamhet.

Kontakta Annonsör

Axel Ward

Axel Ward